Для корректной работы сайта выключите VPN

Дом шале в КП Зиккурат

Описание

Вашему вниманию представляется одноэтажный дом в стиле шале от 105 до 199 м² на участке от 8 до 50 соток в коттеджном поселке Зиккурат, расположенном в 115 км от МКАД по Новорижскому шоссе.
Сочетание камня и дерева — воплощение природной гармонии и естественности. Этот проект объединяет швейцарскую классику с современными решениями, создавая уютное пространство для жизни и отдыха.
Архитектурные особенности: двускатная крыша с широкими карнизами — традиционный элемент шале, подчеркивающий альпийский стиль; просторная терраса под защитой кровли — идеальное место для отдыха на свежем воздухе; панорамные окна наполняют интерьер светом и открывают живописные виды.
Этот дом — идеальное сочетание традиционного шарма шале и современных технологий, где каждая деталь продумана для вашего комфорта.
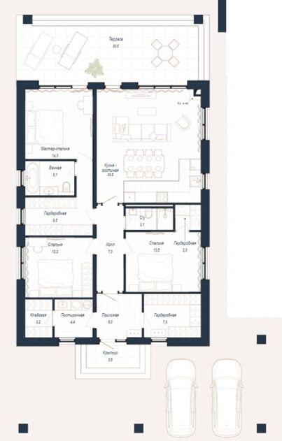
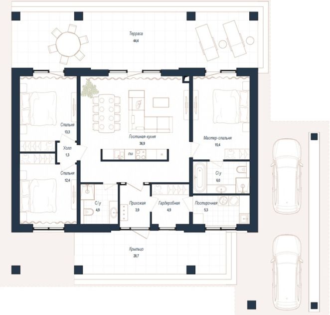
Количество спален: 3 Тип дома: кирпичный Готовность: Строится Категория земли: Земли нас. пунктов, ИЖС

Коммуникации

Газ: Да Канализация: центральная Водопровод: центральный Электричество, кВт: 15

Планировка

Первый этаж: прихожая, холл, кухня-гостиная, три спальни, одна или три гардеробные, два-три санузла, постирочная, одна или две кладовые, зона отдыха с душевой, парная, терраса, крыльцо.

О посёлке

ZIGGURAT Resort & Club – премиальный загородный коттеджный поселок на берегу реки Руза, расположенный в 115 км от МКАД по Новорижскому шоссе – идеальное место для тех, кто ценит гармонию современной загородной жизни и первозданной природы.
Уникальное сочетание природы, роскоши и комфорта.
Архитекторы постарались соблюсти тонкий баланс первозданной природы и жилого пространства, заключив все в единую визуальную концепцию.

Простор и экология: 60 Га благоустроенной территории, 140 Га нетронутой природы, 4 км живописной прибрежной зоны, 10 км пешеходных маршрутов, ТОП-5 самых экологически чистых районов Подмосковья.
Инфраструктура мирового уровня.
Более 50 объектов для отдыха, спорта и развлечений: конный клуб *Horse Gallery Club* с полем для поло и левадами, спортивный кластер и горнолыжный склон *Sky Rock*, яхт-клуб с пристанью и благоустроенный пляж, амфитеатр и зоны для BBQ, детский клуб и активити-парк, прогулочные бульвары, каскадные водопады, живописные пруды.
Эксклюзивные резиденции: 300 домовладений в едином архитектурном стиле, уютные резиденции для семей, пар и ценителей уединения, мощеные мостовые, извилистые каналы, зоны отдыха.

Резиденции в стиле Шале, Райт и Хай-Тек органично вписываются в окружающий ландшафт, а просторные террасы и панорамное остекление усиливают связь с естественной средой.
Архитекторы отразили тонкий баланс первозданной природы и жилого пространства, заключив все это в единую визуальную концепцию.
ZIGGURAT Resort & Club – ваш идеальный баланс спокойствия и современной жизни.

Лот: 111721467

115 км от МКАД 105 м² 6 сот.
дом 3 спальни под ключ в ипотеку
30 000 000 рублей

Ваш персональный менеджер

Сайфутдинов Тимур
Сайфутдинов Тимур
Специалист по работе с загородной недвижимостью

Описание

Вашему вниманию представляется одноэтажный дом в стиле шале от 105 до 199 м² на участке от 8 до 50 соток в коттеджном поселке Зиккурат, расположенном в 115 км от МКАД по Новорижскому шоссе.
Сочетание камня и дерева — воплощение природной гармонии и естественности. Этот проект объединяет швейцарскую классику с современными решениями, создавая уютное пространство для жизни и отдыха.
Архитектурные особенности: двускатная крыша с широкими карнизами — традиционный элемент шале, подчеркивающий альпийский стиль; просторная терраса под защитой кровли — идеальное место для отдыха на свежем воздухе; панорамные окна наполняют интерьер светом и открывают живописные виды.
Этот дом — идеальное сочетание традиционного шарма шале и современных технологий, где каждая деталь продумана для вашего комфорта.
Количество спален: 3 Тип дома: кирпичный Готовность: Строится Категория земли: Земли нас. пунктов, ИЖС

Коммуникации

Газ: Да Канализация: центральная Водопровод: центральный Электричество, кВт: 15

Планировка

Первый этаж: прихожая, холл, кухня-гостиная, три спальни, одна или три гардеробные, два-три санузла, постирочная, одна или две кладовые, зона отдыха с душевой, парная, терраса, крыльцо.

О посёлке

ZIGGURAT Resort & Club – премиальный загородный коттеджный поселок на берегу реки Руза, расположенный в 115 км от МКАД по Новорижскому шоссе – идеальное место для тех, кто ценит гармонию современной загородной жизни и первозданной природы.
Уникальное сочетание природы, роскоши и комфорта.
Архитекторы постарались соблюсти тонкий баланс первозданной природы и жилого пространства, заключив все в единую визуальную концепцию.

Простор и экология: 60 Га благоустроенной территории, 140 Га нетронутой природы, 4 км живописной прибрежной зоны, 10 км пешеходных маршрутов, ТОП-5 самых экологически чистых районов Подмосковья.
Инфраструктура мирового уровня.
Более 50 объектов для отдыха, спорта и развлечений: конный клуб *Horse Gallery Club* с полем для поло и левадами, спортивный кластер и горнолыжный склон *Sky Rock*, яхт-клуб с пристанью и благоустроенный пляж, амфитеатр и зоны для BBQ, детский клуб и активити-парк, прогулочные бульвары, каскадные водопады, живописные пруды.
Эксклюзивные резиденции: 300 домовладений в едином архитектурном стиле, уютные резиденции для семей, пар и ценителей уединения, мощеные мостовые, извилистые каналы, зоны отдыха.

Резиденции в стиле Шале, Райт и Хай-Тек органично вписываются в окружающий ландшафт, а просторные террасы и панорамное остекление усиливают связь с естественной средой.
Архитекторы отразили тонкий баланс первозданной природы и жилого пространства, заключив все это в единую визуальную концепцию.
ZIGGURAT Resort & Club – ваш идеальный баланс спокойствия и современной жизни.

Какой поселок на Новой Риге
подойдет именно вам?

Ответьте на несколько вопросов и получите экспертное мнение, какой поселок подходит под ваши требования (отметьте галочками приоритетные параметры)

Каталог в мессенджере