Для корректной работы сайта выключите VPN

Дом хай-тек в КП Зиккурат

Описание

Вашему вниманию представляется двухэтажный дом в стиле хай-тек от 175 до 342 м² на участке от 8 до 50 соток в коттеджном поселке Зиккурат, расположенном в 115 км от МКАД по Новорижскому шоссе.
Дом воплощает строгую геометрию: четкие прямые линии, отсутствие лишнего декора и плоская кровля подчеркивают современную эстетику. Лаконичные формы сочетаются с продуманной функциональностью, создавая комфортное и технологичное пространство.
Архитектурный облик строится на минимализме — холодные оттенки фасадов, натуральные фактуры и безупречная простота линий. Это идеальный выбор для тех, кто ценит актуальный дизайн, удобство и бескомпромиссный стиль.
Количество спален: 3 Тип дома: кирпичный Готовность: Строится Категория земли: Земли нас. пунктов, ИЖС

Коммуникации

Газ: Да Канализация: центральная Водопровод: центральный Электричество, кВт: 15

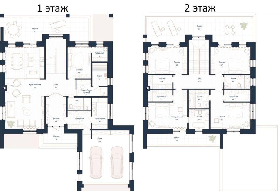
Планировка

Первый этаж: крыльцо, прихожая, гардеробная, кухня, гостиная, столовая, санузел, спальня, холл, кабинет, сауна, кладовая, постирочная, терраса, гараж;
Второй этаж: холл, две или три спальни, два или три санузла, две гардеробные, два балкона.

О посёлке

ZIGGURAT Resort & Club – премиальный загородный коттеджный поселок на берегу реки Руза, расположенный в 115 км от МКАД по Новорижскому шоссе – идеальное место для тех, кто ценит гармонию современной загородной жизни и первозданной природы.
Уникальное сочетание природы, роскоши и комфорта.
Архитекторы постарались соблюсти тонкий баланс первозданной природы и жилого пространства, заключив все в единую визуальную концепцию.

Простор и экология: 60 Га благоустроенной территории, 140 Га нетронутой природы, 4 км живописной прибрежной зоны, 10 км пешеходных маршрутов, ТОП-5 самых экологически чистых районов Подмосковья.
Инфраструктура мирового уровня.
Более 50 объектов для отдыха, спорта и развлечений: конный клуб *Horse Gallery Club* с полем для поло и левадами, спортивный кластер и горнолыжный склон *Sky Rock*, яхт-клуб с пристанью и благоустроенный пляж, амфитеатр и зоны для BBQ, детский клуб и активити-парк, прогулочные бульвары, каскадные водопады, живописные пруды.
Эксклюзивные резиденции: 300 домовладений в едином архитектурном стиле, уютные резиденции для семей, пар и ценителей уединения, мощеные мостовые, извилистые каналы, зоны отдыха.

Резиденции в стиле Шале, Райт и Хай-Тек органично вписываются в окружающий ландшафт, а просторные террасы и панорамное остекление усиливают связь с естественной средой.
Архитекторы отразили тонкий баланс первозданной природы и жилого пространства, заключив все это в единую визуальную концепцию.
ZIGGURAT Resort & Club – ваш идеальный баланс спокойствия и современной жизни.

Лот: 111723079

115 км от МКАД 175 м² 6 сот.
дом 3 спальни под ключ в ипотеку
100 000 000 рублей

Ваш персональный менеджер

Новоселов Владимир
Новоселов Владимир
Специалист по работе с загородной недвижимостью

Описание

Вашему вниманию представляется двухэтажный дом в стиле хай-тек от 175 до 342 м² на участке от 8 до 50 соток в коттеджном поселке Зиккурат, расположенном в 115 км от МКАД по Новорижскому шоссе.
Дом воплощает строгую геометрию: четкие прямые линии, отсутствие лишнего декора и плоская кровля подчеркивают современную эстетику. Лаконичные формы сочетаются с продуманной функциональностью, создавая комфортное и технологичное пространство.
Архитектурный облик строится на минимализме — холодные оттенки фасадов, натуральные фактуры и безупречная простота линий. Это идеальный выбор для тех, кто ценит актуальный дизайн, удобство и бескомпромиссный стиль.
Количество спален: 3 Тип дома: кирпичный Готовность: Строится Категория земли: Земли нас. пунктов, ИЖС

Коммуникации

Газ: Да Канализация: центральная Водопровод: центральный Электричество, кВт: 15

Планировка

Первый этаж: крыльцо, прихожая, гардеробная, кухня, гостиная, столовая, санузел, спальня, холл, кабинет, сауна, кладовая, постирочная, терраса, гараж;
Второй этаж: холл, две или три спальни, два или три санузла, две гардеробные, два балкона.

О посёлке

ZIGGURAT Resort & Club – премиальный загородный коттеджный поселок на берегу реки Руза, расположенный в 115 км от МКАД по Новорижскому шоссе – идеальное место для тех, кто ценит гармонию современной загородной жизни и первозданной природы.
Уникальное сочетание природы, роскоши и комфорта.
Архитекторы постарались соблюсти тонкий баланс первозданной природы и жилого пространства, заключив все в единую визуальную концепцию.

Простор и экология: 60 Га благоустроенной территории, 140 Га нетронутой природы, 4 км живописной прибрежной зоны, 10 км пешеходных маршрутов, ТОП-5 самых экологически чистых районов Подмосковья.
Инфраструктура мирового уровня.
Более 50 объектов для отдыха, спорта и развлечений: конный клуб *Horse Gallery Club* с полем для поло и левадами, спортивный кластер и горнолыжный склон *Sky Rock*, яхт-клуб с пристанью и благоустроенный пляж, амфитеатр и зоны для BBQ, детский клуб и активити-парк, прогулочные бульвары, каскадные водопады, живописные пруды.
Эксклюзивные резиденции: 300 домовладений в едином архитектурном стиле, уютные резиденции для семей, пар и ценителей уединения, мощеные мостовые, извилистые каналы, зоны отдыха.

Резиденции в стиле Шале, Райт и Хай-Тек органично вписываются в окружающий ландшафт, а просторные террасы и панорамное остекление усиливают связь с естественной средой.
Архитекторы отразили тонкий баланс первозданной природы и жилого пространства, заключив все это в единую визуальную концепцию.
ZIGGURAT Resort & Club – ваш идеальный баланс спокойствия и современной жизни.

Какой поселок на Новой Риге
подойдет именно вам?

Ответьте на несколько вопросов и получите экспертное мнение, какой поселок подходит под ваши требования (отметьте галочками приоритетные параметры)

Каталог в мессенджере