Для корректной работы сайта выключите VPN

Новый дом в КП Новорижский

Описание

Вашему вниманию предоставлен дом в коттеджном поселке бизнес класса «Новорижский» в 27 км от МКАД по Новорижскому шоссе.

Дом в современном стиле имеет 2 полноценных этажа с высотой потолков более 3м, а также мансардный этаж. Входная группа оборудована биометрическим замком, из дома предусмотрен выход на террасу внутреннего двора через широкую распашную дверь.

Дом построен на монолитном фундаменте, стены из керамического пустотелого кирпича покрыты декоративной штукатуркой. Фасад декорирован деревом, клинкерной плиткой и искусственным камнем. Все материалы примененные при строительстве 100% экологически чистые.

Внутренняя отделка выполняется по авторскому проекту в современном стиле. Используются исключительно натуральные материалы такие как массив дуба, мрамор, керамогранит, кварц. Помимо традиционных инженерных систем в доме установлена система «умный дом», централизованное пылеудаление и кондиционирование

Участок 6 соток огорожен забором. На участке выполнены ландшафтные работы, смонтирована дренажная система, выведена система полива, обустроены дорожки и площадки из брусчатки.
Количество спален: 4 Тип балкона: балкон Санузел: 3 Тип дома: кирпичный Готовность: Готов полностью Категория земли: Земли нас. пунктов, ИЖС

Коммуникации

Газ: Да Канализация: центральная Водопровод: центральный Электричество, кВт: 15

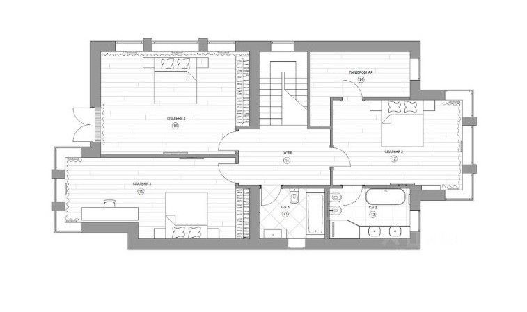
Планировка

Первый этаж: прихожая, прачечная, холл, санузел с душем, кухня-гостиная, балкон

Второй этаж: холл, мастер-спальня с гардеробом и санузлом с ванной и душевой, спальня, санузел с душем, спальня с балконом

О посёлке

Коттеджный поселок Новорижский находится в 27 км от МКАД по Новорижскому шоссе в окружении лесного массива. В «Новорижском» можно купить новые дома, выполненные под ключ или под отделку, дома из бруса, натурального кирпича или газосиликатных блоков, которые расположены у озера, канала или рядом с парком. А также участок и построить дом по своему индивидуальному проекту.
Территория поселка полностью огорожена, организовано несколько въездом, что создает каждому жителю комфортный доступ к своему дому. Дороги асфальтированы, сделаны широкие бульвары, установлено освещение, осуществляется круглосуточное патрулирование территории. Все коммуникации центральные: газоснабжение, электричество, канализация и водопровод.
В поселке созданы водные каналы и благоустроены три парковые зоны с озерами. У одного из озер создан пляж для купания. Продуманное расположение детских и спортивных площадок дает возможность комфортно проводить время как совсем маленьким детям, так и подросткам. Для детей также построены частные сады: "Baby Teddy", "Дивный Сад", "Casa Dei Bambini XXL", "Binny" и школы: "Покровская гимназия", "Новорижская школа", "Junior School", "Лицей", "Академия Знаний".

К внешней высокоразвитой инфраструктуре относятся близко расположенные торговые и спортивно-развлекательные центры с бассейнами и СПА-комплексами: Novaya Riga Outlet Village, ТЦ Pokrovsky, клуб-ресторан Ribambelle Village, Agalarov Golf & Country Club расположены всего в 3–5 минутах на машине. В пешей доступности находится продуктовый магазин со всеми товарами первой необходимости.
Удобное расположение поселка обеспечивает мобильность его жителей. Прямой выезд на скоростное Новорижское шоссе позволяет максимально быстро добраться до Москвы. Время в пути займет 20 минут.

Если вы цените жизнь на природе и городской комфорт, то это лучшее место для проживания и отдыха.
LETO Estate подберет для Вас идеальный вариант загородной жизни. Получите полный каталог всех предложений в коттеджном поселке Новорижский.

Лот: 77035616

27 км от МКАД 300 м² 6.1 сот.
дом 4 спальни под ключ в ипотеку
85 000 000 рублей

Ваш персональный менеджер

Попова Нина
Попова Нина
Специалист по работе с загородной недвижимостью

Описание

Вашему вниманию предоставлен дом в коттеджном поселке бизнес класса «Новорижский» в 27 км от МКАД по Новорижскому шоссе.

Дом в современном стиле имеет 2 полноценных этажа с высотой потолков более 3м, а также мансардный этаж. Входная группа оборудована биометрическим замком, из дома предусмотрен выход на террасу внутреннего двора через широкую распашную дверь.

Дом построен на монолитном фундаменте, стены из керамического пустотелого кирпича покрыты декоративной штукатуркой. Фасад декорирован деревом, клинкерной плиткой и искусственным камнем. Все материалы примененные при строительстве 100% экологически чистые.

Внутренняя отделка выполняется по авторскому проекту в современном стиле. Используются исключительно натуральные материалы такие как массив дуба, мрамор, керамогранит, кварц. Помимо традиционных инженерных систем в доме установлена система «умный дом», централизованное пылеудаление и кондиционирование

Участок 6 соток огорожен забором. На участке выполнены ландшафтные работы, смонтирована дренажная система, выведена система полива, обустроены дорожки и площадки из брусчатки.
Количество спален: 4 Тип балкона: балкон Санузел: 3 Тип дома: кирпичный Готовность: Готов полностью Категория земли: Земли нас. пунктов, ИЖС

Коммуникации

Газ: Да Канализация: центральная Водопровод: центральный Электричество, кВт: 15

Планировка

Первый этаж: прихожая, прачечная, холл, санузел с душем, кухня-гостиная, балкон

Второй этаж: холл, мастер-спальня с гардеробом и санузлом с ванной и душевой, спальня, санузел с душем, спальня с балконом

О посёлке

Коттеджный поселок Новорижский находится в 27 км от МКАД по Новорижскому шоссе в окружении лесного массива. В «Новорижском» можно купить новые дома, выполненные под ключ или под отделку, дома из бруса, натурального кирпича или газосиликатных блоков, которые расположены у озера, канала или рядом с парком. А также участок и построить дом по своему индивидуальному проекту.
Территория поселка полностью огорожена, организовано несколько въездом, что создает каждому жителю комфортный доступ к своему дому. Дороги асфальтированы, сделаны широкие бульвары, установлено освещение, осуществляется круглосуточное патрулирование территории. Все коммуникации центральные: газоснабжение, электричество, канализация и водопровод.
В поселке созданы водные каналы и благоустроены три парковые зоны с озерами. У одного из озер создан пляж для купания. Продуманное расположение детских и спортивных площадок дает возможность комфортно проводить время как совсем маленьким детям, так и подросткам. Для детей также построены частные сады: "Baby Teddy", "Дивный Сад", "Casa Dei Bambini XXL", "Binny" и школы: "Покровская гимназия", "Новорижская школа", "Junior School", "Лицей", "Академия Знаний".

К внешней высокоразвитой инфраструктуре относятся близко расположенные торговые и спортивно-развлекательные центры с бассейнами и СПА-комплексами: Novaya Riga Outlet Village, ТЦ Pokrovsky, клуб-ресторан Ribambelle Village, Agalarov Golf & Country Club расположены всего в 3–5 минутах на машине. В пешей доступности находится продуктовый магазин со всеми товарами первой необходимости.
Удобное расположение поселка обеспечивает мобильность его жителей. Прямой выезд на скоростное Новорижское шоссе позволяет максимально быстро добраться до Москвы. Время в пути займет 20 минут.

Если вы цените жизнь на природе и городской комфорт, то это лучшее место для проживания и отдыха.
LETO Estate подберет для Вас идеальный вариант загородной жизни. Получите полный каталог всех предложений в коттеджном поселке Новорижский.

Другие предложения в «Новорижский»

Какой поселок на Новой Риге
подойдет именно вам?

Ответьте на несколько вопросов и получите экспертное мнение, какой поселок подходит под ваши требования (отметьте галочками приоритетные параметры)

Каталог в мессенджере