Для корректной работы сайта выключите VPN

Дом в КП Новорижский

Описание

Вашему вниманию представляется кирпичный дом площадью 250 м² расположен в охраняемом коттеджном посёлке Новорижский, расположенном в 27 км от МКАД по Новорижскому шоссе.
Участок — 6,2 сотки, открытого типа, что даёт широкие возможности для ландшафтного оформления. Предусмотрен навес на два автомобиля.

Архитектура дома выполнена в современном стиле с акцентом на выразительность и свободу планировки. Фасад облицован дагестанским камнем, установлены алюминиевые окна, уложена премиальная брусчатка Steingot. Забор оснащён электроприводом.
Дом находится в состоянии: полы — керамогранит, стены — подготовлены под покраску, потолки — полностью завершены. Все санузлы оборудованы качественной сантехникой. В комплект входят шторы, люстры, диван. Кухня подготовлена по дизайн-проекту. На участке высажены крупномеры.
Дом готов к финальной отделке и позволяет реализовать любые интерьерные решения.
Количество спален: 5 Тип дома: кирпичный Готовность: Готов полностью Категория земли: Земли нас. пунктов, ИЖС

Коммуникации

Газ: Да Канализация: центральная Водопровод: центральный Электричество, кВт: 15

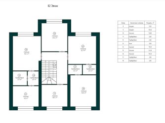
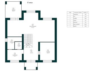
Планировка

Первый этаж: холл, гардеробная, гостиная, кухня с выходом на веранду, комната гостевая, санузел, постирочная, котельная;
Второй этаж: мастер- спальня со своим санузлом и гардеробной, три детские спальни с гардеробными, санузел.

О посёлке

Коттеджный поселок Новорижский находится в 27 км от МКАД по Новорижскому шоссе в окружении лесного массива. В «Новорижском» можно купить новые дома, выполненные под ключ или под отделку, дома из бруса, натурального кирпича или газосиликатных блоков, которые расположены у озера, канала или рядом с парком. А также участок и построить дом по своему индивидуальному проекту.
Территория поселка полностью огорожена, организовано несколько въездом, что создает каждому жителю комфортный доступ к своему дому. Дороги асфальтированы, сделаны широкие бульвары, установлено освещение, осуществляется круглосуточное патрулирование территории. Все коммуникации центральные: газоснабжение, электричество, канализация и водопровод.
В поселке созданы водные каналы и благоустроены три парковые зоны с озерами. У одного из озер создан пляж для купания. Продуманное расположение детских и спортивных площадок дает возможность комфортно проводить время как совсем маленьким детям, так и подросткам. Для детей также построены частные сады: "Baby Teddy", "Дивный Сад", "Casa Dei Bambini XXL", "Binny" и школы: "Покровская гимназия", "Новорижская школа", "Junior School", "Лицей", "Академия Знаний".

К внешней высокоразвитой инфраструктуре относятся близко расположенные торговые и спортивно-развлекательные центры с бассейнами и СПА-комплексами: Novaya Riga Outlet Village, ТЦ Pokrovsky, клуб-ресторан Ribambelle Village, Agalarov Golf & Country Club расположены всего в 3–5 минутах на машине. В пешей доступности находится продуктовый магазин со всеми товарами первой необходимости.
Удобное расположение поселка обеспечивает мобильность его жителей. Прямой выезд на скоростное Новорижское шоссе позволяет максимально быстро добраться до Москвы. Время в пути займет 20 минут.

Если вы цените жизнь на природе и городской комфорт, то это лучшее место для проживания и отдыха.
LETO Estate подберет для Вас идеальный вариант загородной жизни. Получите полный каталог всех предложений в коттеджном поселке Новорижский.

Лот: 123833424

27 км от МКАД 250 м² 6.2 сот.
дом 5 спален под ключ в ипотеку
75 000 000 рублей

Ваш персональный менеджер

Васильева Анжелика
Васильева Анжелика
Специалист по работе с загородной недвижимостью

Описание

Вашему вниманию представляется кирпичный дом площадью 250 м² расположен в охраняемом коттеджном посёлке Новорижский, расположенном в 27 км от МКАД по Новорижскому шоссе.
Участок — 6,2 сотки, открытого типа, что даёт широкие возможности для ландшафтного оформления. Предусмотрен навес на два автомобиля.

Архитектура дома выполнена в современном стиле с акцентом на выразительность и свободу планировки. Фасад облицован дагестанским камнем, установлены алюминиевые окна, уложена премиальная брусчатка Steingot. Забор оснащён электроприводом.
Дом находится в состоянии: полы — керамогранит, стены — подготовлены под покраску, потолки — полностью завершены. Все санузлы оборудованы качественной сантехникой. В комплект входят шторы, люстры, диван. Кухня подготовлена по дизайн-проекту. На участке высажены крупномеры.
Дом готов к финальной отделке и позволяет реализовать любые интерьерные решения.
Количество спален: 5 Тип дома: кирпичный Готовность: Готов полностью Категория земли: Земли нас. пунктов, ИЖС

Коммуникации

Газ: Да Канализация: центральная Водопровод: центральный Электричество, кВт: 15

Планировка

Первый этаж: холл, гардеробная, гостиная, кухня с выходом на веранду, комната гостевая, санузел, постирочная, котельная;
Второй этаж: мастер- спальня со своим санузлом и гардеробной, три детские спальни с гардеробными, санузел.

О посёлке

Коттеджный поселок Новорижский находится в 27 км от МКАД по Новорижскому шоссе в окружении лесного массива. В «Новорижском» можно купить новые дома, выполненные под ключ или под отделку, дома из бруса, натурального кирпича или газосиликатных блоков, которые расположены у озера, канала или рядом с парком. А также участок и построить дом по своему индивидуальному проекту.
Территория поселка полностью огорожена, организовано несколько въездом, что создает каждому жителю комфортный доступ к своему дому. Дороги асфальтированы, сделаны широкие бульвары, установлено освещение, осуществляется круглосуточное патрулирование территории. Все коммуникации центральные: газоснабжение, электричество, канализация и водопровод.
В поселке созданы водные каналы и благоустроены три парковые зоны с озерами. У одного из озер создан пляж для купания. Продуманное расположение детских и спортивных площадок дает возможность комфортно проводить время как совсем маленьким детям, так и подросткам. Для детей также построены частные сады: "Baby Teddy", "Дивный Сад", "Casa Dei Bambini XXL", "Binny" и школы: "Покровская гимназия", "Новорижская школа", "Junior School", "Лицей", "Академия Знаний".

К внешней высокоразвитой инфраструктуре относятся близко расположенные торговые и спортивно-развлекательные центры с бассейнами и СПА-комплексами: Novaya Riga Outlet Village, ТЦ Pokrovsky, клуб-ресторан Ribambelle Village, Agalarov Golf & Country Club расположены всего в 3–5 минутах на машине. В пешей доступности находится продуктовый магазин со всеми товарами первой необходимости.
Удобное расположение поселка обеспечивает мобильность его жителей. Прямой выезд на скоростное Новорижское шоссе позволяет максимально быстро добраться до Москвы. Время в пути займет 20 минут.

Если вы цените жизнь на природе и городской комфорт, то это лучшее место для проживания и отдыха.
LETO Estate подберет для Вас идеальный вариант загородной жизни. Получите полный каталог всех предложений в коттеджном поселке Новорижский.

Другие предложения в «Новорижский»

Какой поселок на Новой Риге
подойдет именно вам?

Ответьте на несколько вопросов и получите экспертное мнение, какой поселок подходит под ваши требования (отметьте галочками приоритетные параметры)

Каталог в мессенджере