Для корректной работы сайта выключите VPN

Дом в КП Миллениум парк

Описание

Вашему вниманию представляется современный, минималистичный, функциональный дом в коттеджном поселки Миллениум парк, расположенном в 19 км от МКАД по Новорижскому шоссе.
Простые линии и премиальные материалы подчеркивают стиль, а функциональная планировка делает каждое помещение удобным и практичным.
Внутри высокие потолки, просторные открытые пространства и панорамное остекление. Общая площадь дома составляет 361 кв.м.
Фасад привлекает внимание большой площадью остекления и сочетанием интересных материалов: натурального фактурного камня, планкена, алюмокомпозитных панелей и крупноформатного керамогранита.
За счет использования натуральных материалов и природных оттенков в облицовке дом органично вписывается в окружающий ландшафт, становится естественным дополнением пейзажа и сочетает в себе простоту, комфорт и функциональность.
Количество спален: 3 Тип дома: кирпичный Готовность: Строится Категория земли: Земли нас. пунктов, ИЖС

Коммуникации

Газ: Да Канализация: центральная Водопровод: центральный

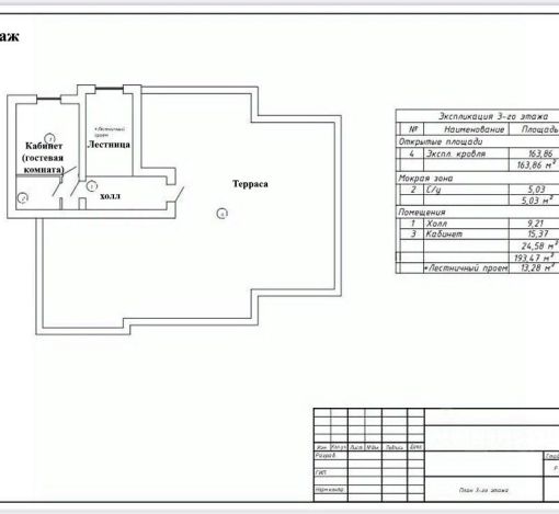
Планировка

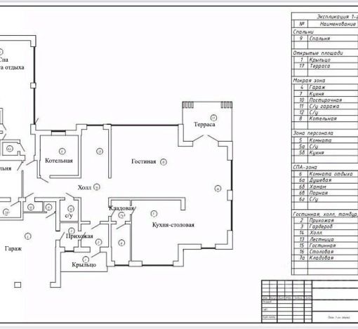
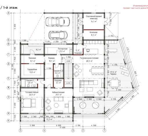
Первый этаж: холл, гардеробная, кабинет, санузел, постирочная, столовая, кухня, гостиная, гараж, две кладовые, котельная;
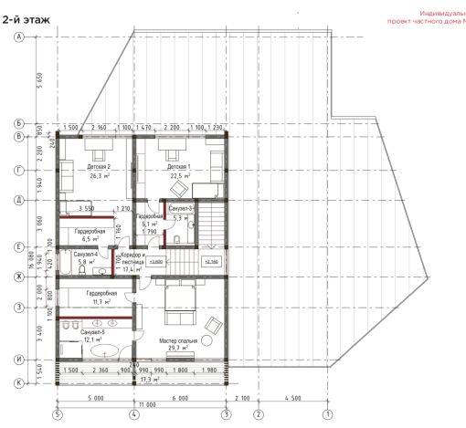
Второй этаж: холл, мастер-спальня с гардеробной и санузлом, две спальни с ванными комнатами и выходами на общую террасу.

О посёлке

Коттеджный поселок “Миллениум парк” расположен в 19 км от МКАД по Новорижскому шоссе. Поселок воплощает в себе все современные представления о роскошной жизни за городом. Миллениум парк – это 331 га земли в экологически-чистом районе Подмосковья, разделенных на 8 кварталов, при этом практически вся территория поселка пронизана системой водных каналов, общая длина которых составляет 12 км.
Особое внимание в поселке уделено ландшафтному дизайну в рекреационных зонах, благодаря чему в поселке появились тематические парки в классическом европейском стиле с необычными беседками и малыми архитектурными формами, общая площадь которых составляет 30 га.
В поселке “Миллениум парк” возведено 670 роскошных загородных резиденций площадью от 250 до 1067 кв. м по авторским проектам, воплотившим лучшие традиции различных архитектурных направлений от неоклассики до модерна. Территория поселка разделена на участки площадью от 20 соток до 2 га.
Все последние достижения современной цивилизации создатели поселка постарались донести в каждый загородный дом, построенный в элитном поселке “Миллениум парк”, именно поэтому, приобретая здесь недвижимость, вы можете быть уверены в высочайшем уровне комфорта. Территория поселка полностью огорожена, организована въездная группа, патрулирование территории, профессиональная служба безопасности.
Главной целью создателей поселка “Миллениум парк” была организация идеального пространства для жизни и досуга, занятий спортом и общения с единомышленниками, и надо связать, с задачей они справились отлично. Помимо 5 парков, где всегда приятно прогуляться и поиграть с детьми, на берегу главного пруда возведен ресторан с открытой верандой у воды, детские и спортивные площадки. Наличие теннисного комплекса оценят ярые поклонники этой увлекательной игры, Детский клуб “Робин Гуд” с радостью откроет для ваших детей волшебный мир знаний.

Проживая в окружении целого ряда элитных поселков Новорижского направления, владельцы недвижимости в “Миллениум парк” могут не беспокоиться об однообразии своего досуга. В радиусе 10 минут езды от поселка можно найти несколько изысканных ресторанов, престижные школы и лицеи, детские сады и развивающие центры, продуктовые магазины, супермаркеты и торговые центры, высококлассные спа-салоны и фитнес-клубы.
Из коттеджного посёлка «Миллениум Парк» легко добраться до ключевых точек столицы: до МКАД время в дороге займет 20-25 минут на автомобиле по Новорижскому шоссе; до «Москва‑Сити» — примерно 35–40 минут.

Лот: 134952619

19 км от МКАД 361 м² 15.4 сот.
дом 3 спальни без отделки в ипотеку
230 000 000 рублей

Ваш персональный менеджер

Коваленко Иван
Коваленко Иван
Специалист по работе с загородной недвижимостью

Описание

Вашему вниманию представляется современный, минималистичный, функциональный дом в коттеджном поселки Миллениум парк, расположенном в 19 км от МКАД по Новорижскому шоссе.
Простые линии и премиальные материалы подчеркивают стиль, а функциональная планировка делает каждое помещение удобным и практичным.
Внутри высокие потолки, просторные открытые пространства и панорамное остекление. Общая площадь дома составляет 361 кв.м.
Фасад привлекает внимание большой площадью остекления и сочетанием интересных материалов: натурального фактурного камня, планкена, алюмокомпозитных панелей и крупноформатного керамогранита.
За счет использования натуральных материалов и природных оттенков в облицовке дом органично вписывается в окружающий ландшафт, становится естественным дополнением пейзажа и сочетает в себе простоту, комфорт и функциональность.
Количество спален: 3 Тип дома: кирпичный Готовность: Строится Категория земли: Земли нас. пунктов, ИЖС

Коммуникации

Газ: Да Канализация: центральная Водопровод: центральный

Планировка

Первый этаж: холл, гардеробная, кабинет, санузел, постирочная, столовая, кухня, гостиная, гараж, две кладовые, котельная;
Второй этаж: холл, мастер-спальня с гардеробной и санузлом, две спальни с ванными комнатами и выходами на общую террасу.

О посёлке

Коттеджный поселок “Миллениум парк” расположен в 19 км от МКАД по Новорижскому шоссе. Поселок воплощает в себе все современные представления о роскошной жизни за городом. Миллениум парк – это 331 га земли в экологически-чистом районе Подмосковья, разделенных на 8 кварталов, при этом практически вся территория поселка пронизана системой водных каналов, общая длина которых составляет 12 км.
Особое внимание в поселке уделено ландшафтному дизайну в рекреационных зонах, благодаря чему в поселке появились тематические парки в классическом европейском стиле с необычными беседками и малыми архитектурными формами, общая площадь которых составляет 30 га.
В поселке “Миллениум парк” возведено 670 роскошных загородных резиденций площадью от 250 до 1067 кв. м по авторским проектам, воплотившим лучшие традиции различных архитектурных направлений от неоклассики до модерна. Территория поселка разделена на участки площадью от 20 соток до 2 га.
Все последние достижения современной цивилизации создатели поселка постарались донести в каждый загородный дом, построенный в элитном поселке “Миллениум парк”, именно поэтому, приобретая здесь недвижимость, вы можете быть уверены в высочайшем уровне комфорта. Территория поселка полностью огорожена, организована въездная группа, патрулирование территории, профессиональная служба безопасности.
Главной целью создателей поселка “Миллениум парк” была организация идеального пространства для жизни и досуга, занятий спортом и общения с единомышленниками, и надо связать, с задачей они справились отлично. Помимо 5 парков, где всегда приятно прогуляться и поиграть с детьми, на берегу главного пруда возведен ресторан с открытой верандой у воды, детские и спортивные площадки. Наличие теннисного комплекса оценят ярые поклонники этой увлекательной игры, Детский клуб “Робин Гуд” с радостью откроет для ваших детей волшебный мир знаний.

Проживая в окружении целого ряда элитных поселков Новорижского направления, владельцы недвижимости в “Миллениум парк” могут не беспокоиться об однообразии своего досуга. В радиусе 10 минут езды от поселка можно найти несколько изысканных ресторанов, престижные школы и лицеи, детские сады и развивающие центры, продуктовые магазины, супермаркеты и торговые центры, высококлассные спа-салоны и фитнес-клубы.
Из коттеджного посёлка «Миллениум Парк» легко добраться до ключевых точек столицы: до МКАД время в дороге займет 20-25 минут на автомобиле по Новорижскому шоссе; до «Москва‑Сити» — примерно 35–40 минут.

Другие предложения в «Миллениум Парк»

Какой поселок на Новой Риге
подойдет именно вам?

Ответьте на несколько вопросов и получите экспертное мнение, какой поселок подходит под ваши требования (отметьте галочками приоритетные параметры)

Каталог в мессенджере