Для корректной работы сайта выключите VPN

Дом в Миллениум парк под отделку

Описание

Вашему вниманию представляется великолепный современный дом в коттеджном поселке премиум-класса - Миллениум парк!

Дом построен в современной архитектурной стилистике, с панорамным остеклением и плоскими эксплуатируемыми кровлями, на которых можно обустроить дополнительные зоны для отдыха.
Стены дома выполнены из экологически чистого керамического блока Поротерм, что обеспечивает низкую теплопроводность благодаря чему зимой в доме будет тепло, а летом он будет удерживать прохладу.

Фасад дома отделан натуральными материалами: декоративная плитка из ракушечника, ригельная плитка, травертин и песчаник, пропитанные специальным водоотталкивающим раствором, благодаря чему фасад не меняет свой цвет в дождливую или влажную погоду.

К дому подведены все центральные коммуникации поселка, на участке сделан дренаж, а также выполнена вертикальная планировка.
Перед домом залита бетонная площадка для парковки автомобилей, к ступеням дома на крыльце подведена система подогрева. Так же в доме установлена подогреваемая входная дверь.
Внутри дома возведены все перегородки, отлита монолитная лестница.
Высота потолков на первом этаже составляет 4,3м, на втором 3,75, на третьем 3,3, что делает помещения очень светлыми и просторными
Количество спален: 6 Тип балкона: терраса Жилая площадь: 830 Тип дома: кирпичный Готовность: Готов полностью Категория земли: ДНП

Коммуникации

Газ: Да Канализация: центральная Водопровод: центральный Электричество, кВт: 30

Планировка

Планировка дома:
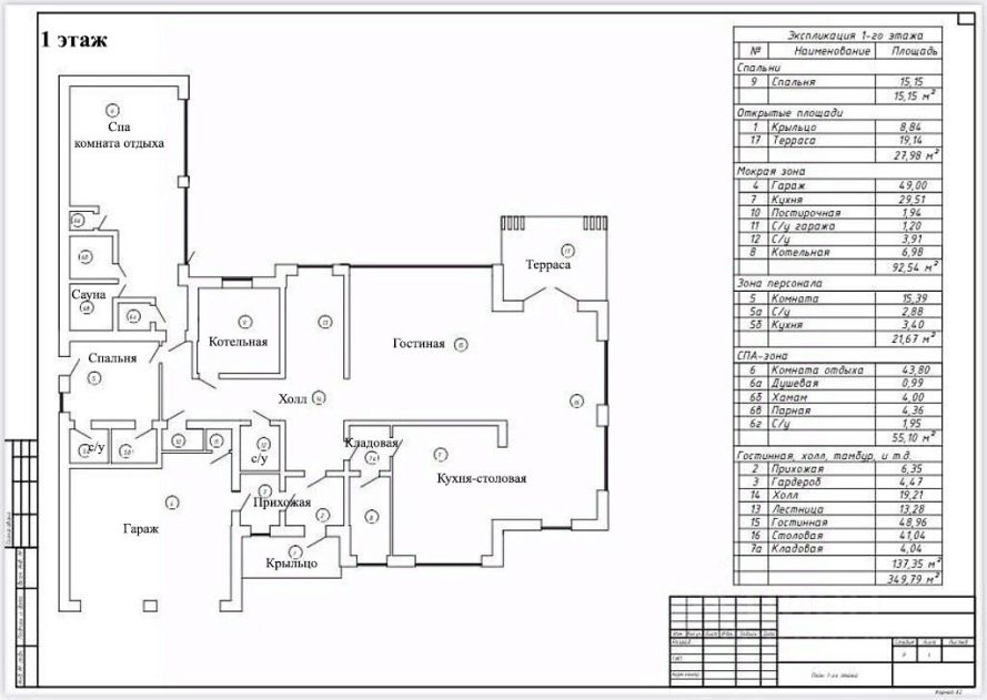
Первый этаж - прихожая, гардеробная, гостевой с/у, гостиная с выходом на террасу, кухня-столовая, кладовая, гостевая спальня с с/у, СПА с сауной, хаммамом, комнатой отдыха и выходом на террасу, гараж на два машиноместа.
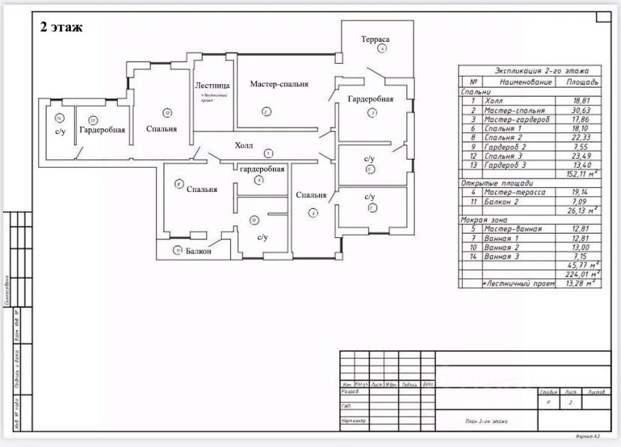
Второй этаж - мастер-спальня, со своей ванной комнатой, гардеробной, и выходом на просторную террасу, две спальни со своим с/у и гардеробной, спальня со своим с/у.
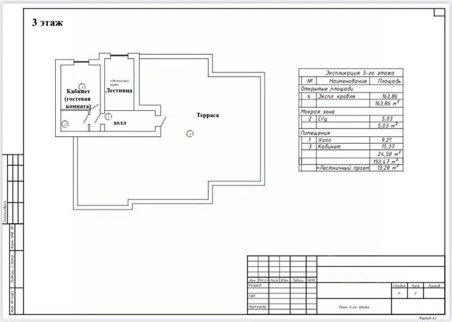
Третий этаж - кабинет/гостевая спальня, с с/у, выход на открытую террасу.

О посёлке

Коттеджный поселок “Миллениум парк” расположен в 19 км от МКАД по Новорижскому шоссе. Поселок воплощает в себе все современные представления о роскошной жизни за городом. Миллениум парк – это 331 га земли в экологически-чистом районе Подмосковья, разделенных на 8 кварталов, при этом практически вся территория поселка пронизана системой водных каналов, общая длина которых составляет 12 км.
Особое внимание в поселке уделено ландшафтному дизайну в рекреационных зонах, благодаря чему в поселке появились тематические парки в классическом европейском стиле с необычными беседками и малыми архитектурными формами, общая площадь которых составляет 30 га.
В поселке “Миллениум парк” возведено 670 роскошных загородных резиденций площадью от 250 до 1067 кв. м по авторским проектам, воплотившим лучшие традиции различных архитектурных направлений от неоклассики до модерна. Территория поселка разделена на участки площадью от 20 соток до 2 га.
Все последние достижения современной цивилизации создатели поселка постарались донести в каждый загородный дом, построенный в элитном поселке “Миллениум парк”, именно поэтому, приобретая здесь недвижимость, вы можете быть уверены в высочайшем уровне комфорта. Территория поселка полностью огорожена, организована въездная группа, патрулирование территории, профессиональная служба безопасности.
Главной целью создателей поселка “Миллениум парк” была организация идеального пространства для жизни и досуга, занятий спортом и общения с единомышленниками, и надо связать, с задачей они справились отлично. Помимо 5 парков, где всегда приятно прогуляться и поиграть с детьми, на берегу главного пруда возведен ресторан с открытой верандой у воды, детские и спортивные площадки. Наличие теннисного комплекса оценят ярые поклонники этой увлекательной игры, Детский клуб “Робин Гуд” с радостью откроет для ваших детей волшебный мир знаний.

Проживая в окружении целого ряда элитных поселков Новорижского направления, владельцы недвижимости в “Миллениум парк” могут не беспокоиться об однообразии своего досуга. В радиусе 10 минут езды от поселка можно найти несколько изысканных ресторанов, престижные школы и лицеи, детские сады и развивающие центры, продуктовые магазины, супермаркеты и торговые центры, высококлассные спа-салоны и фитнес-клубы.
Из коттеджного посёлка «Миллениум Парк» легко добраться до ключевых точек столицы: до МКАД время в дороге займет 20-25 минут на автомобиле по Новорижскому шоссе; до «Москва‑Сити» — примерно 35–40 минут.

Лот: 117832292

19 км от МКАД 830 м² 15 сот.
дом 6 спален без отделки в ипотеку
185 000 000 рублей

Ваш персональный менеджер

Васильева Анжелика
Васильева Анжелика
Специалист по работе с загородной недвижимостью

Описание

Вашему вниманию представляется великолепный современный дом в коттеджном поселке премиум-класса - Миллениум парк!

Дом построен в современной архитектурной стилистике, с панорамным остеклением и плоскими эксплуатируемыми кровлями, на которых можно обустроить дополнительные зоны для отдыха.
Стены дома выполнены из экологически чистого керамического блока Поротерм, что обеспечивает низкую теплопроводность благодаря чему зимой в доме будет тепло, а летом он будет удерживать прохладу.

Фасад дома отделан натуральными материалами: декоративная плитка из ракушечника, ригельная плитка, травертин и песчаник, пропитанные специальным водоотталкивающим раствором, благодаря чему фасад не меняет свой цвет в дождливую или влажную погоду.

К дому подведены все центральные коммуникации поселка, на участке сделан дренаж, а также выполнена вертикальная планировка.
Перед домом залита бетонная площадка для парковки автомобилей, к ступеням дома на крыльце подведена система подогрева. Так же в доме установлена подогреваемая входная дверь.
Внутри дома возведены все перегородки, отлита монолитная лестница.
Высота потолков на первом этаже составляет 4,3м, на втором 3,75, на третьем 3,3, что делает помещения очень светлыми и просторными
Количество спален: 6 Тип балкона: терраса Жилая площадь: 830 Тип дома: кирпичный Готовность: Готов полностью Категория земли: ДНП

Коммуникации

Газ: Да Канализация: центральная Водопровод: центральный Электричество, кВт: 30

Планировка

Планировка дома:
Первый этаж - прихожая, гардеробная, гостевой с/у, гостиная с выходом на террасу, кухня-столовая, кладовая, гостевая спальня с с/у, СПА с сауной, хаммамом, комнатой отдыха и выходом на террасу, гараж на два машиноместа.
Второй этаж - мастер-спальня, со своей ванной комнатой, гардеробной, и выходом на просторную террасу, две спальни со своим с/у и гардеробной, спальня со своим с/у.
Третий этаж - кабинет/гостевая спальня, с с/у, выход на открытую террасу.

О посёлке

Коттеджный поселок “Миллениум парк” расположен в 19 км от МКАД по Новорижскому шоссе. Поселок воплощает в себе все современные представления о роскошной жизни за городом. Миллениум парк – это 331 га земли в экологически-чистом районе Подмосковья, разделенных на 8 кварталов, при этом практически вся территория поселка пронизана системой водных каналов, общая длина которых составляет 12 км.
Особое внимание в поселке уделено ландшафтному дизайну в рекреационных зонах, благодаря чему в поселке появились тематические парки в классическом европейском стиле с необычными беседками и малыми архитектурными формами, общая площадь которых составляет 30 га.
В поселке “Миллениум парк” возведено 670 роскошных загородных резиденций площадью от 250 до 1067 кв. м по авторским проектам, воплотившим лучшие традиции различных архитектурных направлений от неоклассики до модерна. Территория поселка разделена на участки площадью от 20 соток до 2 га.
Все последние достижения современной цивилизации создатели поселка постарались донести в каждый загородный дом, построенный в элитном поселке “Миллениум парк”, именно поэтому, приобретая здесь недвижимость, вы можете быть уверены в высочайшем уровне комфорта. Территория поселка полностью огорожена, организована въездная группа, патрулирование территории, профессиональная служба безопасности.
Главной целью создателей поселка “Миллениум парк” была организация идеального пространства для жизни и досуга, занятий спортом и общения с единомышленниками, и надо связать, с задачей они справились отлично. Помимо 5 парков, где всегда приятно прогуляться и поиграть с детьми, на берегу главного пруда возведен ресторан с открытой верандой у воды, детские и спортивные площадки. Наличие теннисного комплекса оценят ярые поклонники этой увлекательной игры, Детский клуб “Робин Гуд” с радостью откроет для ваших детей волшебный мир знаний.

Проживая в окружении целого ряда элитных поселков Новорижского направления, владельцы недвижимости в “Миллениум парк” могут не беспокоиться об однообразии своего досуга. В радиусе 10 минут езды от поселка можно найти несколько изысканных ресторанов, престижные школы и лицеи, детские сады и развивающие центры, продуктовые магазины, супермаркеты и торговые центры, высококлассные спа-салоны и фитнес-клубы.
Из коттеджного посёлка «Миллениум Парк» легко добраться до ключевых точек столицы: до МКАД время в дороге займет 20-25 минут на автомобиле по Новорижскому шоссе; до «Москва‑Сити» — примерно 35–40 минут.

Другие предложения в «Миллениум Парк»

Какой поселок на Новой Риге
подойдет именно вам?

Ответьте на несколько вопросов и получите экспертное мнение, какой поселок подходит под ваши требования (отметьте галочками приоритетные параметры)

Каталог в мессенджере