Для корректной работы сайта выключите VPN

Дом в КП Высокий берег

Описание

Вашему вниманию представляется великолепный дом на первой береговой линии в КП "Высокий берег". Дом площадью 728.8 расположен на благоустроенном участке 39 соток. Дом построен из высококачественных строительных материалов. Дизайн интерьера выполнен в современном стиле, установлена вся необходимая мебель и бытовая техника ведущих мировых производителей, полы с подогревом, в котельной установлена система водоподготовки, а также система кондиционирования и приточно-вытяжная вентиляция.
Участок правильной формы. Выполнен ландшафтный дизайн, установлен автополив, декоративное освещение, высажены плодовые и декоративные деревья.
Количество спален: 7 Санузел: 5 Тип дома: Блоки Готовность: Готов полностью Категория земли: Земли нас. пунктов, ИЖС

Коммуникации

Газ: Да Канализация: центральная Водопровод: центральный Электричество, кВт: 30

Планировка

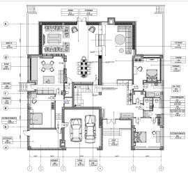
Планировка дома

Первый этаж: прихожая, просторная гостиная с выходом на террасу, кухня с кладовой, 2 гостевые спальни, 2 санузла, мастер спальня с санузлом, гардеробная, серверная, котельная, гараж на 2 машиноместа.

Второй этаж: холл со вторым светом, 2 кабинета со своими санузлами, детская с санузлом и гардеробной, мастер-спальня с санузлом и гардеробом, спортзал, постирочная с хозяйственным блоком.

О посёлке

«Высокий берег» - это коттеджный поселок в Подмосковье на «большой воде», расположенный на самом популярном и престижном шоссе – в 55 км от МКАД по Новорижскому шоссе.
Коттеджный поселок «Высокий берег» удивляет необычным сочетанием уникальной природы и архитектуры. Авторская концепция и проекты коттеджей от ведущего современного российского архитектора Михаила Хазанова создают в поселке на Новорижском шоссе совершенный стиль, идея которого – вдохновение и гармония с окружающей природой – подчеркивает все достоинства и статус этого уникального места.

Лот: 34970597

55 км от МКАД 728 м² 39 сот.
дом 7 спален под ключ
150 000 000 рублей

Ваш персональный менеджер

Видецких Олег
Видецких Олег
Специалист по работе с загородной недвижимостью

Описание

Вашему вниманию представляется великолепный дом на первой береговой линии в КП "Высокий берег". Дом площадью 728.8 расположен на благоустроенном участке 39 соток. Дом построен из высококачественных строительных материалов. Дизайн интерьера выполнен в современном стиле, установлена вся необходимая мебель и бытовая техника ведущих мировых производителей, полы с подогревом, в котельной установлена система водоподготовки, а также система кондиционирования и приточно-вытяжная вентиляция.
Участок правильной формы. Выполнен ландшафтный дизайн, установлен автополив, декоративное освещение, высажены плодовые и декоративные деревья.
Количество спален: 7 Санузел: 5 Тип дома: Блоки Готовность: Готов полностью Категория земли: Земли нас. пунктов, ИЖС

Коммуникации

Газ: Да Канализация: центральная Водопровод: центральный Электричество, кВт: 30

Планировка

Планировка дома

Первый этаж: прихожая, просторная гостиная с выходом на террасу, кухня с кладовой, 2 гостевые спальни, 2 санузла, мастер спальня с санузлом, гардеробная, серверная, котельная, гараж на 2 машиноместа.

Второй этаж: холл со вторым светом, 2 кабинета со своими санузлами, детская с санузлом и гардеробной, мастер-спальня с санузлом и гардеробом, спортзал, постирочная с хозяйственным блоком.

О посёлке

«Высокий берег» - это коттеджный поселок в Подмосковье на «большой воде», расположенный на самом популярном и престижном шоссе – в 55 км от МКАД по Новорижскому шоссе.
Коттеджный поселок «Высокий берег» удивляет необычным сочетанием уникальной природы и архитектуры. Авторская концепция и проекты коттеджей от ведущего современного российского архитектора Михаила Хазанова создают в поселке на Новорижском шоссе совершенный стиль, идея которого – вдохновение и гармония с окружающей природой – подчеркивает все достоинства и статус этого уникального места.

Какой поселок на Новой Риге
подойдет именно вам?

Ответьте на несколько вопросов и получите экспертное мнение, какой поселок подходит под ваши требования (отметьте галочками приоритетные параметры)

Каталог в мессенджере