Для корректной работы сайта выключите VPN

Новый дом около леса 9 км от МКАД

Описание

Предлагаем Вашему вниманию новый современный дом под чистовую отделку площадью 450 кв. м с бассейном в ДНТ Спасатель-1, расположенном в 9 км от МКАД по Новорижскому шоссе. В доме очень светлая гостиная-столовая с панорамным остеклением и выходом на открытую террасу площадью 80 кв. м.
Фасад дома комбинированный, выполнен из натуральной лиственницы и декоративной штукатурки. При строительстве и отделке были использованы только высококачественные, дорогостоящие материалы. Дом подключен ко всем коммуникациям. В доме выполнены разводка электричества и отопления. Стены отштукатурены. Есть возможность сделать СПА зону с бассейном и сауной в цокольном этаже. Есть дизайн-проект дома.
Участок правильной формы площадью 10 соток хорошо освещен.
Количество спален: 5 Тип дома: кирпичный Готовность: Под отделку Категория земли: ДНП

Коммуникации

Газ: Да Канализация: Септик Водопровод: скважина Электричество, кВт: 15

Планировка

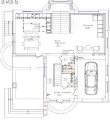
Первый этаж: гостиная-столовая, прихожая, гостевая комната, санузел, гардеробная, бойлерная, кладовая, гараж на один автомобиль.
Второй этаж: мастер-спальня с ванной комнатой, гардеробной и выходом на террасу, три спальни с ванными комнатами и гардеробными, из спален есть выход на террасу.

О посёлке

Пригородный коттеджный поселок "Спасатель-1" расположен в 9 км от МКАД по Новорижскому шоссе. Поселок окружен смешанным лесом. Красота здешних мест с лёгкостью восстанавливают утраченные горожанами связи с природой. Именно здесь нашел своё воплощение новый современный взгляд на активный отдых и комфортное проживание на природе.
Доступ в поселок осуществляется жителями через организованный въезд.

В пешей доступности вся инфраструктура Рига Лэнд. На территории бизнес-центра располагаются 6 офисных зданий, отель «Riga Land», медицинская клиника «Чайка», рестораны, кафе, магазины, салон красоты «RigaBeautySPA», фитнес-центр «RigaFit» и специализированный зал «CrossFit IceBox» для занятий кросс-фитом. Особенностью инфраструктуры бизнес-центра Рига-Лэнд является наличие многофункционального ледового комплекса «Riga Ice Land», этот комплекс подходит для тренировок и состязаний хоккеистов, профессиональных фигуристов и любителей. Рядом с бизнес-центром находится строительный двор Петровский и Петровский базар.

Ближайшая автобусная остановка находится в 200 м от поселка, здесь проходят несколько автобусных маршрутов и маршрутных такси в разные части города Москвы. На автомобиле время в пути до МКАД составит менее 12 минут, а до Москва-Сити менее получаса.

Лот: 127484055

9 км от МКАД 450 м² 10 сот.
дом 5 спален без отделки
79 900 000 рублей

Ваш персональный менеджер

Васильева Анжелика
Васильева Анжелика
Специалист по работе с загородной недвижимостью

Описание

Предлагаем Вашему вниманию новый современный дом под чистовую отделку площадью 450 кв. м с бассейном в ДНТ Спасатель-1, расположенном в 9 км от МКАД по Новорижскому шоссе. В доме очень светлая гостиная-столовая с панорамным остеклением и выходом на открытую террасу площадью 80 кв. м.
Фасад дома комбинированный, выполнен из натуральной лиственницы и декоративной штукатурки. При строительстве и отделке были использованы только высококачественные, дорогостоящие материалы. Дом подключен ко всем коммуникациям. В доме выполнены разводка электричества и отопления. Стены отштукатурены. Есть возможность сделать СПА зону с бассейном и сауной в цокольном этаже. Есть дизайн-проект дома.
Участок правильной формы площадью 10 соток хорошо освещен.
Количество спален: 5 Тип дома: кирпичный Готовность: Под отделку Категория земли: ДНП

Коммуникации

Газ: Да Канализация: Септик Водопровод: скважина Электричество, кВт: 15

Планировка

Первый этаж: гостиная-столовая, прихожая, гостевая комната, санузел, гардеробная, бойлерная, кладовая, гараж на один автомобиль.
Второй этаж: мастер-спальня с ванной комнатой, гардеробной и выходом на террасу, три спальни с ванными комнатами и гардеробными, из спален есть выход на террасу.

О посёлке

Пригородный коттеджный поселок "Спасатель-1" расположен в 9 км от МКАД по Новорижскому шоссе. Поселок окружен смешанным лесом. Красота здешних мест с лёгкостью восстанавливают утраченные горожанами связи с природой. Именно здесь нашел своё воплощение новый современный взгляд на активный отдых и комфортное проживание на природе.
Доступ в поселок осуществляется жителями через организованный въезд.

В пешей доступности вся инфраструктура Рига Лэнд. На территории бизнес-центра располагаются 6 офисных зданий, отель «Riga Land», медицинская клиника «Чайка», рестораны, кафе, магазины, салон красоты «RigaBeautySPA», фитнес-центр «RigaFit» и специализированный зал «CrossFit IceBox» для занятий кросс-фитом. Особенностью инфраструктуры бизнес-центра Рига-Лэнд является наличие многофункционального ледового комплекса «Riga Ice Land», этот комплекс подходит для тренировок и состязаний хоккеистов, профессиональных фигуристов и любителей. Рядом с бизнес-центром находится строительный двор Петровский и Петровский базар.

Ближайшая автобусная остановка находится в 200 м от поселка, здесь проходят несколько автобусных маршрутов и маршрутных такси в разные части города Москвы. На автомобиле время в пути до МКАД составит менее 12 минут, а до Москва-Сити менее получаса.

Какой поселок на Новой Риге
подойдет именно вам?

Ответьте на несколько вопросов и получите экспертное мнение, какой поселок подходит под ваши требования (отметьте галочками приоритетные параметры)

Каталог в мессенджере