Для корректной работы сайта выключите VPN

Дом с парком в Поздняково

Описание

Представляем вашему вниманию резиденцию «под ключ» с собственным парком 781 кв. м на земельном участке площадью 26 соток в деревне Поздняково, расположенном всего в 9 км от МКАД по Новорижскому шоссе.

Дом – четырехэтажный, построен в 2016 году из кирпича. Есть бассейн, спа-зона с тремя видами бань, кинотеатр, библиотека. Фасад облицован кирпичом, фундамент – монолитная плита, железобетонные перекрытия. Во внутренней отделке преимущественно использовано натуральное дерево и элементы из натурального камня. Лестница украшена резными деталями и скульптурами. Установлена бытовая техника и сантехническое оборудование премиального класса. В доме предусмотрен отдельный блок для персонала со своим входом с улицы.

Участок ухоженный, произведены ландшафтные работы, организован автополив. На участке разбит собственный парк с прудом и беседкой, организована зона BBQ. Площадка перед домом и дорожки выложены брусчаткой. На придомовой территории можно припарковать пять автомобилей. Коммуникации: центральная канализация, газ и электричество, скважина -130 м.
Количество спален: 8 Жилая площадь: 781 Тип дома: кирпичный Готовность: Готов полностью Категория земли: Земли нас. пунктов, ИЖС

Коммуникации

Газ: Да Канализация: центральная Водопровод: центральный Электричество, кВт: 15

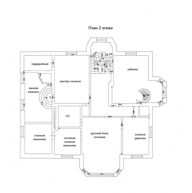
Планировка

Планировка дома:
Цоколь – русская баня, хамам, гималайская соляная баня, спортивный зал, комнаты для отдыха, бассейн с морской водой, котельная, постирочная.
Первый этаж – прихожая, холл, спальня, санузел, гардеробная, кальянная комната, терраса, гостиная, терраса, кухня, столовая.
Второй этаж – мастер-спальня, две детские спальни, гостиная, санузел, двухуровневый кабинет с библиотекой.
Третий этаж – кинотеатр, санузел, три спальни, санузел, игровая комната.

О посёлке

Деревня Поздняково знаменита своей престижностью, солидным окружением и развитой инфраструктурой, расположена в 9 км от МКАД по Новорижскому шоссе.
В деревне Поздняково расположен конноспортивный комплекс «Новый век», в котором есть все для комфортного пребывания лошадей – левады и плацы, конюшни и солярии, манежи для тренировок.
В 1,5 км от коттеджного поселка в селе Николо-Урюпино расположена общеобразовательная школа, продуктовые магазины, Никольская церковь, ресторан Swiss Yard и СПА-комплекс Grand Wellness.
Кроме того, съезжая с Новорижского шоссе в сторону коттеджного поселка СК Липка, расположен торговый центр «Петровский продуктовый базар», «Твой дом», ледовая арена в БЦ RigaLand, а также ТЦ РИГАМОЛЛ и ЦУМ Outlet.
Добраться до деревни Поздняково можно по Новорижскому шоссе. Время в пути до Москвы составит не более 20 минут, до Москва-Сити – 30-40 минут.

Лот: 113347740

9 км от МКАД 781 м² 26 сот.
дом 8 спален под ключ
144 000 000 рублей

Ваш персональный менеджер

Новоселов Владимир
Новоселов Владимир
Специалист по работе с загородной недвижимостью

Описание

Представляем вашему вниманию резиденцию «под ключ» с собственным парком 781 кв. м на земельном участке площадью 26 соток в деревне Поздняково, расположенном всего в 9 км от МКАД по Новорижскому шоссе.

Дом – четырехэтажный, построен в 2016 году из кирпича. Есть бассейн, спа-зона с тремя видами бань, кинотеатр, библиотека. Фасад облицован кирпичом, фундамент – монолитная плита, железобетонные перекрытия. Во внутренней отделке преимущественно использовано натуральное дерево и элементы из натурального камня. Лестница украшена резными деталями и скульптурами. Установлена бытовая техника и сантехническое оборудование премиального класса. В доме предусмотрен отдельный блок для персонала со своим входом с улицы.

Участок ухоженный, произведены ландшафтные работы, организован автополив. На участке разбит собственный парк с прудом и беседкой, организована зона BBQ. Площадка перед домом и дорожки выложены брусчаткой. На придомовой территории можно припарковать пять автомобилей. Коммуникации: центральная канализация, газ и электричество, скважина -130 м.
Количество спален: 8 Жилая площадь: 781 Тип дома: кирпичный Готовность: Готов полностью Категория земли: Земли нас. пунктов, ИЖС

Коммуникации

Газ: Да Канализация: центральная Водопровод: центральный Электричество, кВт: 15

Планировка

Планировка дома:
Цоколь – русская баня, хамам, гималайская соляная баня, спортивный зал, комнаты для отдыха, бассейн с морской водой, котельная, постирочная.
Первый этаж – прихожая, холл, спальня, санузел, гардеробная, кальянная комната, терраса, гостиная, терраса, кухня, столовая.
Второй этаж – мастер-спальня, две детские спальни, гостиная, санузел, двухуровневый кабинет с библиотекой.
Третий этаж – кинотеатр, санузел, три спальни, санузел, игровая комната.

О посёлке

Деревня Поздняково знаменита своей престижностью, солидным окружением и развитой инфраструктурой, расположена в 9 км от МКАД по Новорижскому шоссе.
В деревне Поздняково расположен конноспортивный комплекс «Новый век», в котором есть все для комфортного пребывания лошадей – левады и плацы, конюшни и солярии, манежи для тренировок.
В 1,5 км от коттеджного поселка в селе Николо-Урюпино расположена общеобразовательная школа, продуктовые магазины, Никольская церковь, ресторан Swiss Yard и СПА-комплекс Grand Wellness.
Кроме того, съезжая с Новорижского шоссе в сторону коттеджного поселка СК Липка, расположен торговый центр «Петровский продуктовый базар», «Твой дом», ледовая арена в БЦ RigaLand, а также ТЦ РИГАМОЛЛ и ЦУМ Outlet.
Добраться до деревни Поздняково можно по Новорижскому шоссе. Время в пути до Москвы составит не более 20 минут, до Москва-Сити – 30-40 минут.

Какой поселок на Новой Риге
подойдет именно вам?

Ответьте на несколько вопросов и получите экспертное мнение, какой поселок подходит под ваши требования (отметьте галочками приоритетные параметры)

Каталог в мессенджере