Для корректной работы сайта выключите VPN

Дом в КП Покровское-Рубцово

Описание

Представляем вашему вниманию дом «под отделку» площадью 900 кв. м в охраняемом коттеджном посёлке «Покровское-Рубцово», расположенном в 38 км от МКАД по Новорижскому шоссе. Дом расположен на прекрасном лесном видовом участке правильной формы.

Дом расположен в тихой зелёной части посёлка. Готовность дома - «под отделку», что позволит вам реализовать свой дизайн-проект. Дом монолитно-кирпичный, стены оштукатурены, установлен газовый котёл «Buderus». В 2024 году полностью обновили кровлю из гибкой черепицы, заменили трубы системы отопления на более современные и бесшовные. В доме предусмотрено 5 спален, 6 санузлов, спа - зона с бассейном, сауной и хаммамом.
Все коммуникации - центральные, подведены к дому: газоснабжение, электроснабжение, холодное водоснабжение, канализация, в том числе и ливневая.

На рельефном участке площадью 40 соток всё подготовлено для реализации ландшафтного проекта. Предусмотрен гараж на 2 автомобиля.
Количество спален: 5 Тип дома: кирпичный Готовность: Строится Категория земли: Земли нас. пунктов, ИЖС

Коммуникации

Газ: Да Канализация: центральная Водопровод: центральный Электричество, кВт: 20

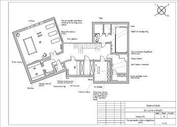
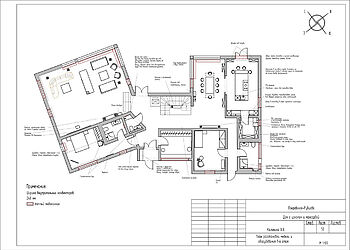
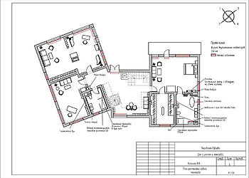
Планировка

Цокольный этаж: зона размещения оборудования для бассейна, постирочная, бильярдная, санузел.
Первый этаж: холл, кухня, столовая, гостиная с камином, санузел, спальня со своей гардеробной и ванной комнатами, кабинет, гараж на два автомобиля;
Второй этаж: Четыре спальни, четыре санузла.

О посёлке

Охраняемый коттеджный посёлок «Покровское Рубцово» расположен в 38 км от Москвы по Новорижскому шоссе. Он разместился на правом холмистом берегу реки Малая Истра, в непосредственной близости от старинной русской усадьбы XVIII века. Это одно из немногих мест в Подмосковье, где обширные смешанные леса гармонично сочетаются с парковыми зонами и высококлассной коттеджной застройкой.
Посёлок находится под круглосуточной охраной. Территория полностью огорожена, оборудован контрольно пропускной пункт на въезде. Жилая часть отделена от общественной зоны прозрачным забором и вторым КПП.
Общая площадь территории составляет 41 гектар. Большую её часть покрывает многовековой лес, а на 7 га раскинулся восстановленный усадебный парк с липовыми аллеями и рукотворным прудом XVIII века. Посёлок имеет оригинальную планировку в форме трилистника и делится на четыре сектора.
Сектор «Рояль» (центральная часть, примыкающая к усадебной территории) включает 11 участков площадью 30–32 сотки. Здесь разбит собственный парк с беседками и детской игровой площадкой. Автомобильные дороги вынесены за пределы сектора, но к каждому дому проложен индивидуальный подъезд — это обеспечивает тишину и покой жителей.
Сектор «Царское село» насчитывает 27 участков площадью 30–67 соток. Дома расположены на живописных возвышенностях с небольшими перепадами высот (до 20 м), что позволяет реализовать интересные архитектурные проекты. В секторе есть несколько парковых зон с детскими площадками.
Сектор «Рубцовский посад» (северо восточная часть посёлка) состоит из 14 участков площадью 18–44 сотки. Южная сторона примыкает к старинной усадьбе с естественными террасами. Участки хорошо освещены солнцем, несмотря на присутствие двухсотлетних деревьев.
Сектор «Дворянское гнездо» (северная часть посёлка) объединяет 26 участков площадью 20–52 сотки.
Территория укрыта тенью высоких пушистых сосен. Несколько домов расположены на «Мысе любви», омываемом Малой Истрой, откуда открываются панорамные виды на окрестности.
Инфраструктура посёлка включает SPA центр, элитный бутиковый отель и закрытый клуб (размещён в восстановленной усадьбе). Архитектурные решения гармонично сочетают современный комфорт и исторический колорит места.
Транспортная доступность: до МКАД — около 35 минут по Новорижскому шоссе; до «Москва Сити» — примерно 50–55 минут (с учётом движения по городским магистралям после съезда с шоссе).

Лот: 119670444

38 км от МКАД 900 м² 40 сот.
дом 5 спален без отделки в ипотеку
115 000 000 рублей

Ваш персональный менеджер

Видецких Олег
Видецких Олег
Специалист по работе с загородной недвижимостью

Описание

Представляем вашему вниманию дом «под отделку» площадью 900 кв. м в охраняемом коттеджном посёлке «Покровское-Рубцово», расположенном в 38 км от МКАД по Новорижскому шоссе. Дом расположен на прекрасном лесном видовом участке правильной формы.

Дом расположен в тихой зелёной части посёлка. Готовность дома - «под отделку», что позволит вам реализовать свой дизайн-проект. Дом монолитно-кирпичный, стены оштукатурены, установлен газовый котёл «Buderus». В 2024 году полностью обновили кровлю из гибкой черепицы, заменили трубы системы отопления на более современные и бесшовные. В доме предусмотрено 5 спален, 6 санузлов, спа - зона с бассейном, сауной и хаммамом.
Все коммуникации - центральные, подведены к дому: газоснабжение, электроснабжение, холодное водоснабжение, канализация, в том числе и ливневая.

На рельефном участке площадью 40 соток всё подготовлено для реализации ландшафтного проекта. Предусмотрен гараж на 2 автомобиля.
Количество спален: 5 Тип дома: кирпичный Готовность: Строится Категория земли: Земли нас. пунктов, ИЖС

Коммуникации

Газ: Да Канализация: центральная Водопровод: центральный Электричество, кВт: 20

Планировка

Цокольный этаж: зона размещения оборудования для бассейна, постирочная, бильярдная, санузел.
Первый этаж: холл, кухня, столовая, гостиная с камином, санузел, спальня со своей гардеробной и ванной комнатами, кабинет, гараж на два автомобиля;
Второй этаж: Четыре спальни, четыре санузла.

О посёлке

Охраняемый коттеджный посёлок «Покровское Рубцово» расположен в 38 км от Москвы по Новорижскому шоссе. Он разместился на правом холмистом берегу реки Малая Истра, в непосредственной близости от старинной русской усадьбы XVIII века. Это одно из немногих мест в Подмосковье, где обширные смешанные леса гармонично сочетаются с парковыми зонами и высококлассной коттеджной застройкой.
Посёлок находится под круглосуточной охраной. Территория полностью огорожена, оборудован контрольно пропускной пункт на въезде. Жилая часть отделена от общественной зоны прозрачным забором и вторым КПП.
Общая площадь территории составляет 41 гектар. Большую её часть покрывает многовековой лес, а на 7 га раскинулся восстановленный усадебный парк с липовыми аллеями и рукотворным прудом XVIII века. Посёлок имеет оригинальную планировку в форме трилистника и делится на четыре сектора.
Сектор «Рояль» (центральная часть, примыкающая к усадебной территории) включает 11 участков площадью 30–32 сотки. Здесь разбит собственный парк с беседками и детской игровой площадкой. Автомобильные дороги вынесены за пределы сектора, но к каждому дому проложен индивидуальный подъезд — это обеспечивает тишину и покой жителей.
Сектор «Царское село» насчитывает 27 участков площадью 30–67 соток. Дома расположены на живописных возвышенностях с небольшими перепадами высот (до 20 м), что позволяет реализовать интересные архитектурные проекты. В секторе есть несколько парковых зон с детскими площадками.
Сектор «Рубцовский посад» (северо восточная часть посёлка) состоит из 14 участков площадью 18–44 сотки. Южная сторона примыкает к старинной усадьбе с естественными террасами. Участки хорошо освещены солнцем, несмотря на присутствие двухсотлетних деревьев.
Сектор «Дворянское гнездо» (северная часть посёлка) объединяет 26 участков площадью 20–52 сотки.
Территория укрыта тенью высоких пушистых сосен. Несколько домов расположены на «Мысе любви», омываемом Малой Истрой, откуда открываются панорамные виды на окрестности.
Инфраструктура посёлка включает SPA центр, элитный бутиковый отель и закрытый клуб (размещён в восстановленной усадьбе). Архитектурные решения гармонично сочетают современный комфорт и исторический колорит места.
Транспортная доступность: до МКАД — около 35 минут по Новорижскому шоссе; до «Москва Сити» — примерно 50–55 минут (с учётом движения по городским магистралям после съезда с шоссе).

Какой поселок на Новой Риге
подойдет именно вам?

Ответьте на несколько вопросов и получите экспертное мнение, какой поселок подходит под ваши требования (отметьте галочками приоритетные параметры)

Каталог в мессенджере