Для корректной работы сайта выключите VPN

Дом в КП Петрово-дальнее

Описание

Вашему вниманию представляется современный коттедж площадью 422,8 кв.м на рельефном участке 12,76 соток в коттеджном поселке Петрово-Дальнее, расположенном всего в 14 км от МКАД по Новорижскому шоссе.
Особенности: современная архитектура, продуманная планировка, мастер-блоки на двух уровнях, большая площадь остекления, несколько корабельных сосен и взрослых берез на участке, живописные виды на лесной массив.
Архитектурный проект выполнен студией Nefaproject и идеально интегрирован в природный ландшафт.
Живописный рельефный участок 12,76 соток с естественными перепадами и взрослыми реликтовыми соснами. Уложен газон, на придомовой территории высажены взрослые липы. Рельеф дает возможность реализовать уникальный ландшафтный проект. По периметру участка - кованое ограждение в едином стиле поселка. Земли ИЖС, соседи проживают круглогодично.
Количество спален: 5 Тип дома: кирпичный Готовность: Под отделку Категория земли: Земли нас. пунктов, ИЖС

Коммуникации

Газ: Да Канализация: центральная Водопровод: центральный

Планировка

Первый этаж: тамбур, парадный холл, гардеробные, гостевая спальня с ванной, кабинет, гостевой санузел, гараж на 2 м/м, котельная, две кладовые;
Второй этаж: кухня-гостиная с выходом на балкон, мастер-спальня с ванной и гардеробной, две комнаты с ванными и выходами на общий балкон, лестничный холл;
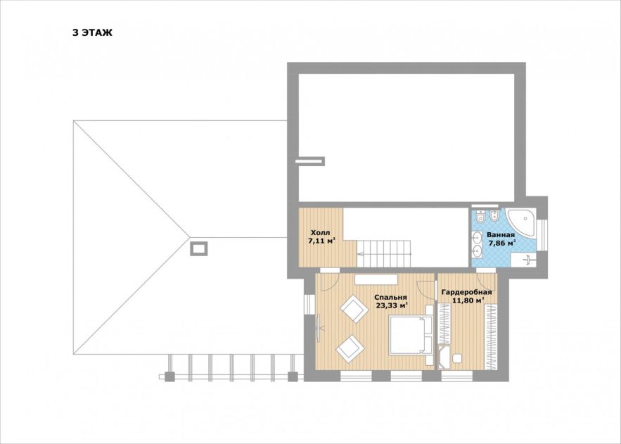
Третий этаж: мастер-спальня с ванной и гардеробной, холл.

О посёлке

Охраняемый коттеджный посёлок «Петрово‑Дальнее» расположен в 14 км от МКАД по Новорижскому шоссе. Посёлок находится в окружении хвойного леса — в месте, где созданы все условия для комфортной загородной жизни в экологически благоприятной зоне.
Петрово-Дальнее - клубный поселок на 43 дома, которые построены в едином архитектурном стиле. На территории площадью 8,2 га бережно сохранён уникальный природный ландшафт с вековыми реликтовыми соснами. Уникальная природная среда создаёт особый микроклимат. Каждый дом органично вписан в окружающую среду, что позволяет жителям наслаждаться единением с природой, не отказываясь от современного комфорта.

Посёлок находится под круглосуточной охраной. Территория полностью огорожена, оборудована системой видеонаблюдения и регулярно патрулируется. На въезде организован контрольно‑пропускной пункт (КПП). Работает собственная эксплуатационная служба, обеспечивающая бесперебойное функционирование всех систем. Все коммуникации — центральные: электроснабжение, газоснабжение, холодное водоснабжение и канализация.
В посёлке обустроена комфортная среда для отдыха и активного досуга: теннисный корт для любителей спорта, баскетбольная площадка для динамичных игр и тренировок, детский городок с безопасными и увлекательными аттракционами для малышей, прогулочные зоны с дорожками, выложенными брусчаткой, и уютным парковым освещением — идеально для вечерних прогулок среди сосен. Удобное расположение посёлка обеспечивает быстрый выезд на Новорижское шоссе. Благодаря этому жители могут легко добраться до ключевых точек региона и столицы, сочетая преимущества загородной жизни с транспортной доступностью.

В 5 минутах езды на автомобиле — вся необходимая инфраструктура: сетевые супермаркеты («Вкусвилл», «Мираторг», Перекресток), МФЦ, аптеки, салоны красоты, фермерский рынок, больницы (Петрово‑Дальневская участковая и филиал Красногорской городской), образовательные учреждения (детский сад № 6, школа «Мир знаний», Петрово‑Дальневская общеобразовательная школа, Детская школа искусств), спортивные и развлекательные объекты (СОК «Петрово‑Дальнее», центр «Ильинка‑спорт», клуб «Легион»), дом культуры «Луч», пансионат с бассейнами и СПА, а также живописные прогулочные маршруты на слиянии рек Москва и Истра.

Выбирая охраняемый коттеджный посёлок «Петрово‑Дальнее», вы получаете жильё в экологически чистом районе среди хвойного леса. Чистый воздух и умиротворяющая атмосфера здесь способствуют здоровому образу жизни.
Продуманная внутренняя инфраструктура подходит как для активного отдыха, так и для спокойных прогулок. При этом всё необходимое находится в 5‑минутной доступности — развитая внешняя инфраструктура рядом.
Удобная транспортная развязка с выездом на Новорижское шоссе позволяет быстро добраться до города. Из коттеджного посёлка «Петрово‑Дальнее» легко добраться до ключевых точек столицы: до МКАД время в дороге займёт менее 25 минут на автомобиле, до «Москва‑Сити» можно доехать примерно за 35–40 минут.
Это место для тех, кто ценит гармонию с природой, безопасность и комфорт, стремится жить в престижном посёлке с продуманной инфраструктурой и при этом оставаться в удобной транспортной доступности от всех благ современной жизни.

Лот: 132104015

14 км от МКАД 423 м² 12.8 сот.
дом 5 спален без отделки в ипотеку
65 000 000 рублей

Ваш персональный менеджер

Коваленко Иван
Коваленко Иван
Специалист по работе с загородной недвижимостью

Описание

Вашему вниманию представляется современный коттедж площадью 422,8 кв.м на рельефном участке 12,76 соток в коттеджном поселке Петрово-Дальнее, расположенном всего в 14 км от МКАД по Новорижскому шоссе.
Особенности: современная архитектура, продуманная планировка, мастер-блоки на двух уровнях, большая площадь остекления, несколько корабельных сосен и взрослых берез на участке, живописные виды на лесной массив.
Архитектурный проект выполнен студией Nefaproject и идеально интегрирован в природный ландшафт.
Живописный рельефный участок 12,76 соток с естественными перепадами и взрослыми реликтовыми соснами. Уложен газон, на придомовой территории высажены взрослые липы. Рельеф дает возможность реализовать уникальный ландшафтный проект. По периметру участка - кованое ограждение в едином стиле поселка. Земли ИЖС, соседи проживают круглогодично.
Количество спален: 5 Тип дома: кирпичный Готовность: Под отделку Категория земли: Земли нас. пунктов, ИЖС

Коммуникации

Газ: Да Канализация: центральная Водопровод: центральный

Планировка

Первый этаж: тамбур, парадный холл, гардеробные, гостевая спальня с ванной, кабинет, гостевой санузел, гараж на 2 м/м, котельная, две кладовые;
Второй этаж: кухня-гостиная с выходом на балкон, мастер-спальня с ванной и гардеробной, две комнаты с ванными и выходами на общий балкон, лестничный холл;
Третий этаж: мастер-спальня с ванной и гардеробной, холл.

О посёлке

Охраняемый коттеджный посёлок «Петрово‑Дальнее» расположен в 14 км от МКАД по Новорижскому шоссе. Посёлок находится в окружении хвойного леса — в месте, где созданы все условия для комфортной загородной жизни в экологически благоприятной зоне.
Петрово-Дальнее - клубный поселок на 43 дома, которые построены в едином архитектурном стиле. На территории площадью 8,2 га бережно сохранён уникальный природный ландшафт с вековыми реликтовыми соснами. Уникальная природная среда создаёт особый микроклимат. Каждый дом органично вписан в окружающую среду, что позволяет жителям наслаждаться единением с природой, не отказываясь от современного комфорта.

Посёлок находится под круглосуточной охраной. Территория полностью огорожена, оборудована системой видеонаблюдения и регулярно патрулируется. На въезде организован контрольно‑пропускной пункт (КПП). Работает собственная эксплуатационная служба, обеспечивающая бесперебойное функционирование всех систем. Все коммуникации — центральные: электроснабжение, газоснабжение, холодное водоснабжение и канализация.
В посёлке обустроена комфортная среда для отдыха и активного досуга: теннисный корт для любителей спорта, баскетбольная площадка для динамичных игр и тренировок, детский городок с безопасными и увлекательными аттракционами для малышей, прогулочные зоны с дорожками, выложенными брусчаткой, и уютным парковым освещением — идеально для вечерних прогулок среди сосен. Удобное расположение посёлка обеспечивает быстрый выезд на Новорижское шоссе. Благодаря этому жители могут легко добраться до ключевых точек региона и столицы, сочетая преимущества загородной жизни с транспортной доступностью.

В 5 минутах езды на автомобиле — вся необходимая инфраструктура: сетевые супермаркеты («Вкусвилл», «Мираторг», Перекресток), МФЦ, аптеки, салоны красоты, фермерский рынок, больницы (Петрово‑Дальневская участковая и филиал Красногорской городской), образовательные учреждения (детский сад № 6, школа «Мир знаний», Петрово‑Дальневская общеобразовательная школа, Детская школа искусств), спортивные и развлекательные объекты (СОК «Петрово‑Дальнее», центр «Ильинка‑спорт», клуб «Легион»), дом культуры «Луч», пансионат с бассейнами и СПА, а также живописные прогулочные маршруты на слиянии рек Москва и Истра.

Выбирая охраняемый коттеджный посёлок «Петрово‑Дальнее», вы получаете жильё в экологически чистом районе среди хвойного леса. Чистый воздух и умиротворяющая атмосфера здесь способствуют здоровому образу жизни.
Продуманная внутренняя инфраструктура подходит как для активного отдыха, так и для спокойных прогулок. При этом всё необходимое находится в 5‑минутной доступности — развитая внешняя инфраструктура рядом.
Удобная транспортная развязка с выездом на Новорижское шоссе позволяет быстро добраться до города. Из коттеджного посёлка «Петрово‑Дальнее» легко добраться до ключевых точек столицы: до МКАД время в дороге займёт менее 25 минут на автомобиле, до «Москва‑Сити» можно доехать примерно за 35–40 минут.
Это место для тех, кто ценит гармонию с природой, безопасность и комфорт, стремится жить в престижном посёлке с продуманной инфраструктурой и при этом оставаться в удобной транспортной доступности от всех благ современной жизни.

Какой поселок на Новой Риге
подойдет именно вам?

Ответьте на несколько вопросов и получите экспертное мнение, какой поселок подходит под ваши требования (отметьте галочками приоритетные параметры)

Каталог в мессенджере