Для корректной работы сайта выключите VPN

Дом с отделкой в Павлово Village

Описание

Вашему вниманию представлен дом площадью 340 кв. м в охраняемом коттеджном поселке Павлово Village, расположенном в 14 км от МКАД по Новорижскому шоссе.

Двухэтажный дом с продуманной планировкой и дорогой дизайнерской отделкой предлагает своему покупателю заняться приятными хлопотами: переездом и обустройством нового жилья.

Участок 14 соток выровнен и застелен газоном, на нем будут высажены деревья.

Охраняемый поселок Павлово Village находится всего в 14 км по скоростному Новорижскому шоссе и примыкает к поселку Павлово-2, входя в его инфраструктурную зону.
Внутри поселка созданы все условия для комфортного проживания: асфальтированные подъездные дороги, широкие улицы с тротуарами и освещением, детские и спортивные площадки, зелёные общественные зоны, места для выгула собак, гостевые парковки.
В поселке обеспечена максимальная безопасность для его жителей.
Периметр поселка Павлово-2 и Павлово Village окружен высоким забором, территория круглосуточно охраняется, ведется постоянное патрулирование и видеонаблюдение территории поселка. Въезд в поселок осуществляется через основной КПП Павлово-2 и через запасной КПП непосредственно у Павлово Village.
Максимальный комфорт для жителей коттеджного поселка Павлово Village обеспечивает инфраструктурный комплекс Павлово Подворье, расположенный непосредственно рядом с поселком.
На территории Павлово подворья есть все необходимое для постоянной жизни и отдыха: продуктовый супермаркет Перекресток; аптека; салон красоты; бутик элитных напитков; лавка с фермерскими продуктами; несколько ресторанов (Vasilchuki Chaihona № 1, OMG cafe); отделение банка Сбер Первый; фитнес клуб World Сlass, клиника; детский мир; зоомагазин.
Жители коттеджного поселка Павлово Village имеют возможность наслаждаться инфраструктурой Павлово-2 и загородной жизнью без необходимости выезжать в город.
Для детей в непосредственной близости с поселком была построена современная школа - Павловская гимназия. В школе работают прекрасные преподаватели, кабинеты обеспечены всем необходимым для обучения оборудованием и техникой, на территории есть отличные спортивные площадки. Выпускники этой гимназии без труда поступают в самые престижные высшие учебные заведения.
Коттеджный поселок Павлово Village отличает прекрасная транспортная доступность. На автомобиле от поселка до МКАД можно доехать всего за 20 минут по скоростному Новорижскому шоссе. Остановки общественного транспорта, автобусов, находятся прямо рядом с КПП, а до станции пригородных поездов МЦД «Нахабино» всего 7 минут на маршрутке.
Количество спален: 5 Тип дома: кирпичный Готовность: Строится Категория земли: Земли нас. пунктов, ИЖС

Коммуникации

Газ: Нет Канализация: центральная Водопровод: центральный Электричество, кВт: 15

Планировка

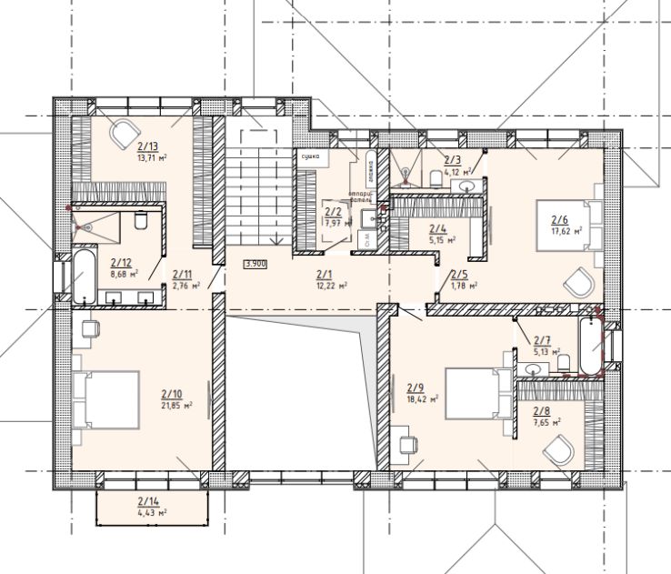
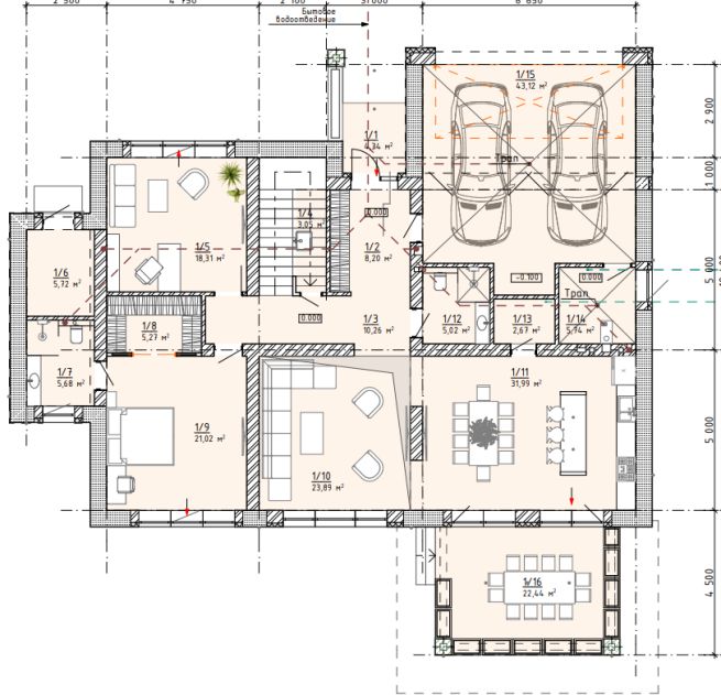
План 1 этажа: три кладовые, гараж, кабинет, спальня, с\у, гардеробная, спальня, кухня\столовая, гостиная, терраса, топочная (инженерная)

План 2 этажа: постирочная, две спальни с с\у и гардеробной, мастерспальня

О посёлке

Охраняемый поселок Павлово Village находится всего в 14 км по скоростному Новорижскому шоссе и примыкает к поселку Павлово-2, входя в его инфраструктурную зону.
Внутри поселка созданы все условия для комфортного проживания: асфальтированные подъездные дороги, широкие улицы с тротуарами и освещением, детские и спортивные площадки, зелёные общественные зоны, места для выгула собак, гостевые парковки.
В поселке обеспечена максимальная безопасность для его жителей.

Периметр поселка Павлово-2 и Павлово Village окружен высоким забором, территория круглосуточно охраняется, ведется постоянное патрулирование и видеонаблюдение территории поселка. Въезд в поселок осуществляется через основной КПП Павлово-2 и через запасной КПП непосредственно у Павлово Village.
Максимальный комфорт для жителей коттеджного поселка Павлово Village обеспечивает инфраструктурный комплекс Павлово Подворье, расположенный непосредственно рядом с поселком.
На территории Павлово подворья есть все необходимое для постоянной жизни и отдыха: продуктовый супермаркет Перекресток; аптека; салон красоты; бутик элитных напитков; лавка с фермерскими продуктами; несколько ресторанов (Vasilchuki Chaihona № 1, OMG cafe); отделение банка Сбер Первый; фитнес клуб World Сlass, клиника; детский мир; зоомагазин.
Жители коттеджного поселка Павлово Village имеют возможность наслаждаться инфраструктурой Павлово-2 и загородной жизнью без необходимости выезжать в город.
Для детей в непосредственной близости с поселком была построена современная школа - Павловская гимназия. В школе работают прекрасные преподаватели, кабинеты обеспечены всем необходимым для обучения оборудованием и техникой, на территории есть отличные спортивные площадки. Выпускники этой гимназии без труда поступают в самые престижные высшие учебные заведения.

Коттеджный поселок Павлово Village отличает прекрасная транспортная доступность. На автомобиле от поселка до МКАД можно доехать всего за 20 минут по скоростному Новорижскому шоссе. Остановки общественного транспорта, автобусов, находятся прямо рядом с КПП, а до станции пригородных поездов МЦД «Нахабино» всего 7 минут на маршрутке.

Лот: 127416892

14 км от МКАД 340 м² 14 сот.
дом 5 спален под ключ в ипотеку
156 500 000 рублей

Ваш персональный менеджер

Новоселов Владимир
Новоселов Владимир
Специалист по работе с загородной недвижимостью

Описание

Вашему вниманию представлен дом площадью 340 кв. м в охраняемом коттеджном поселке Павлово Village, расположенном в 14 км от МКАД по Новорижскому шоссе.

Двухэтажный дом с продуманной планировкой и дорогой дизайнерской отделкой предлагает своему покупателю заняться приятными хлопотами: переездом и обустройством нового жилья.

Участок 14 соток выровнен и застелен газоном, на нем будут высажены деревья.

Охраняемый поселок Павлово Village находится всего в 14 км по скоростному Новорижскому шоссе и примыкает к поселку Павлово-2, входя в его инфраструктурную зону.
Внутри поселка созданы все условия для комфортного проживания: асфальтированные подъездные дороги, широкие улицы с тротуарами и освещением, детские и спортивные площадки, зелёные общественные зоны, места для выгула собак, гостевые парковки.
В поселке обеспечена максимальная безопасность для его жителей.
Периметр поселка Павлово-2 и Павлово Village окружен высоким забором, территория круглосуточно охраняется, ведется постоянное патрулирование и видеонаблюдение территории поселка. Въезд в поселок осуществляется через основной КПП Павлово-2 и через запасной КПП непосредственно у Павлово Village.
Максимальный комфорт для жителей коттеджного поселка Павлово Village обеспечивает инфраструктурный комплекс Павлово Подворье, расположенный непосредственно рядом с поселком.
На территории Павлово подворья есть все необходимое для постоянной жизни и отдыха: продуктовый супермаркет Перекресток; аптека; салон красоты; бутик элитных напитков; лавка с фермерскими продуктами; несколько ресторанов (Vasilchuki Chaihona № 1, OMG cafe); отделение банка Сбер Первый; фитнес клуб World Сlass, клиника; детский мир; зоомагазин.
Жители коттеджного поселка Павлово Village имеют возможность наслаждаться инфраструктурой Павлово-2 и загородной жизнью без необходимости выезжать в город.
Для детей в непосредственной близости с поселком была построена современная школа - Павловская гимназия. В школе работают прекрасные преподаватели, кабинеты обеспечены всем необходимым для обучения оборудованием и техникой, на территории есть отличные спортивные площадки. Выпускники этой гимназии без труда поступают в самые престижные высшие учебные заведения.
Коттеджный поселок Павлово Village отличает прекрасная транспортная доступность. На автомобиле от поселка до МКАД можно доехать всего за 20 минут по скоростному Новорижскому шоссе. Остановки общественного транспорта, автобусов, находятся прямо рядом с КПП, а до станции пригородных поездов МЦД «Нахабино» всего 7 минут на маршрутке.
Количество спален: 5 Тип дома: кирпичный Готовность: Строится Категория земли: Земли нас. пунктов, ИЖС

Коммуникации

Газ: Нет Канализация: центральная Водопровод: центральный Электричество, кВт: 15

Планировка

План 1 этажа: три кладовые, гараж, кабинет, спальня, с\у, гардеробная, спальня, кухня\столовая, гостиная, терраса, топочная (инженерная)

План 2 этажа: постирочная, две спальни с с\у и гардеробной, мастерспальня

О посёлке

Охраняемый поселок Павлово Village находится всего в 14 км по скоростному Новорижскому шоссе и примыкает к поселку Павлово-2, входя в его инфраструктурную зону.
Внутри поселка созданы все условия для комфортного проживания: асфальтированные подъездные дороги, широкие улицы с тротуарами и освещением, детские и спортивные площадки, зелёные общественные зоны, места для выгула собак, гостевые парковки.
В поселке обеспечена максимальная безопасность для его жителей.

Периметр поселка Павлово-2 и Павлово Village окружен высоким забором, территория круглосуточно охраняется, ведется постоянное патрулирование и видеонаблюдение территории поселка. Въезд в поселок осуществляется через основной КПП Павлово-2 и через запасной КПП непосредственно у Павлово Village.
Максимальный комфорт для жителей коттеджного поселка Павлово Village обеспечивает инфраструктурный комплекс Павлово Подворье, расположенный непосредственно рядом с поселком.
На территории Павлово подворья есть все необходимое для постоянной жизни и отдыха: продуктовый супермаркет Перекресток; аптека; салон красоты; бутик элитных напитков; лавка с фермерскими продуктами; несколько ресторанов (Vasilchuki Chaihona № 1, OMG cafe); отделение банка Сбер Первый; фитнес клуб World Сlass, клиника; детский мир; зоомагазин.
Жители коттеджного поселка Павлово Village имеют возможность наслаждаться инфраструктурой Павлово-2 и загородной жизнью без необходимости выезжать в город.
Для детей в непосредственной близости с поселком была построена современная школа - Павловская гимназия. В школе работают прекрасные преподаватели, кабинеты обеспечены всем необходимым для обучения оборудованием и техникой, на территории есть отличные спортивные площадки. Выпускники этой гимназии без труда поступают в самые престижные высшие учебные заведения.

Коттеджный поселок Павлово Village отличает прекрасная транспортная доступность. На автомобиле от поселка до МКАД можно доехать всего за 20 минут по скоростному Новорижскому шоссе. Остановки общественного транспорта, автобусов, находятся прямо рядом с КПП, а до станции пригородных поездов МЦД «Нахабино» всего 7 минут на маршрутке.

Какой поселок на Новой Риге
подойдет именно вам?

Ответьте на несколько вопросов и получите экспертное мнение, какой поселок подходит под ваши требования (отметьте галочками приоритетные параметры)

Каталог в мессенджере