Для корректной работы сайта выключите VPN

Деревянный дом в КП Лешково

Описание

Вашему вниманию представляется деревянный дом 220 кв.м. у леса в деревне Лешково, расположенной на удаленности 21 км от МКАД по Новорижскому шоссе.
Особенностью дома является панорамное остекление, что подарит будущему хозяину ощущение простора, дополнительное естественное освещение всего дома и потрясающий вид на лес.

В архитектурном проекте данного дома нет ничего лишнего. Панорамное остекление в гостиной установлено с трех сторон практически без стеновых пролетов, что дарит совершенно невообразимое единение с природой – на участок прибегают белки, залетают лесные птицы, открывается потрясающий вид на лес. Находясь в данном доме, ощущается особенная умиротворенность. Дом подходит для круглогодичного проживания всей семьи.

В доме понятная планировка, построен по каркасной технологии, облицован планкеном из лиственницы, внутри стены отделаны также лиственницей. В каждой спальне предусмотрено помещение для гардеробной. Доступ в гараж осуществляется также из дома через бойлерную. С двух сторон дом огибает терраса из импрегнированной сосны.

Участок, на котором расположен дом, правильной квадратной формы, общей площадью 25 сот. Объект расположен вдали от въездной группы и максимально близко к лесу, что обеспечит будущему жителю уединение и спокойствие. Грунт на участке песчаный, дренаж выполнен по периметру дома. В дом заведены все коммуникации. Канализация организована в виде септика (АНА-200), пробурена скважина, на участок выделено 15 кВт. Дом отапливается газом.
Количество спален: 3 Тип дома: деревянный Готовность: Готов полностью Категория земли: ДНП

Коммуникации

Газ: Да Канализация: Септик Водопровод: скважина Электричество, кВт: 15

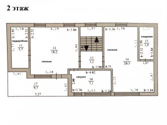
Планировка

Первый этаж: бойлерная, гараж на два машино-места, кухня-гостиная, спальня, кладовая, санузел;
Второй этаж: две спальни, санузел.

О посёлке

Коттеджный поселок Лешково, расположен всего в 21 км МКАД по Новорижскому шоссе и обеспечен превосходной локацией.
В окружении коттеджного поселка находится обширная инфраструктура. Всего лишь в радиусе 1 км расположена частная школа «Павловская гимназия». В школе работают прекрасные преподаватели, кабинеты обеспечены всем необходимым для обучения оборудованием и техникой, на территории есть отличные спортивные площадки. Выпускники этой гимназии без труда поступают в самые престижные высшие учебные заведения.

На территории инфраструктурного комплекса «Павлово подворе» есть все необходимое для постоянной жизни и отдыха: продуктовый супермаркет Перекресток, аптека, салон красоты, бутик элитных напитков, лавка с фермерскими продуктами, несколько ресторанов (Vasilchuki Chaihona № 1, OMG cafe, Вкусно - и точка), отделение банка Сбер Первый, фитнес клуб World class, клиника, детский мир, зоомагазин.

Деревню Лешково отличает прекрасная транспортная доступность.
На машине до поселка можно доехать всего за 15 минут от Москвы по скоростному Новорижскому шоссе. Добраться до коттеджного поселка можно по Новорижскому шоссе. Время в пути до Москвы составит не более 20 минут, до Москва-Сити – 30-40 минут.
Если вам нужно уединение и спокойствие, отсутствие «лишних», то деревня Лешково именно то, что вы ищите.

Лот: 94516503

21 км от МКАД 220 м² 25 сот.
дом 3 спальни под ключ
53 000 000 рублей

Ваш персональный менеджер

Новоселов Владимир
Новоселов Владимир
Специалист по работе с загородной недвижимостью

Описание

Вашему вниманию представляется деревянный дом 220 кв.м. у леса в деревне Лешково, расположенной на удаленности 21 км от МКАД по Новорижскому шоссе.
Особенностью дома является панорамное остекление, что подарит будущему хозяину ощущение простора, дополнительное естественное освещение всего дома и потрясающий вид на лес.

В архитектурном проекте данного дома нет ничего лишнего. Панорамное остекление в гостиной установлено с трех сторон практически без стеновых пролетов, что дарит совершенно невообразимое единение с природой – на участок прибегают белки, залетают лесные птицы, открывается потрясающий вид на лес. Находясь в данном доме, ощущается особенная умиротворенность. Дом подходит для круглогодичного проживания всей семьи.

В доме понятная планировка, построен по каркасной технологии, облицован планкеном из лиственницы, внутри стены отделаны также лиственницей. В каждой спальне предусмотрено помещение для гардеробной. Доступ в гараж осуществляется также из дома через бойлерную. С двух сторон дом огибает терраса из импрегнированной сосны.

Участок, на котором расположен дом, правильной квадратной формы, общей площадью 25 сот. Объект расположен вдали от въездной группы и максимально близко к лесу, что обеспечит будущему жителю уединение и спокойствие. Грунт на участке песчаный, дренаж выполнен по периметру дома. В дом заведены все коммуникации. Канализация организована в виде септика (АНА-200), пробурена скважина, на участок выделено 15 кВт. Дом отапливается газом.
Количество спален: 3 Тип дома: деревянный Готовность: Готов полностью Категория земли: ДНП

Коммуникации

Газ: Да Канализация: Септик Водопровод: скважина Электричество, кВт: 15

Планировка

Первый этаж: бойлерная, гараж на два машино-места, кухня-гостиная, спальня, кладовая, санузел;
Второй этаж: две спальни, санузел.

О посёлке

Коттеджный поселок Лешково, расположен всего в 21 км МКАД по Новорижскому шоссе и обеспечен превосходной локацией.
В окружении коттеджного поселка находится обширная инфраструктура. Всего лишь в радиусе 1 км расположена частная школа «Павловская гимназия». В школе работают прекрасные преподаватели, кабинеты обеспечены всем необходимым для обучения оборудованием и техникой, на территории есть отличные спортивные площадки. Выпускники этой гимназии без труда поступают в самые престижные высшие учебные заведения.

На территории инфраструктурного комплекса «Павлово подворе» есть все необходимое для постоянной жизни и отдыха: продуктовый супермаркет Перекресток, аптека, салон красоты, бутик элитных напитков, лавка с фермерскими продуктами, несколько ресторанов (Vasilchuki Chaihona № 1, OMG cafe, Вкусно - и точка), отделение банка Сбер Первый, фитнес клуб World class, клиника, детский мир, зоомагазин.

Деревню Лешково отличает прекрасная транспортная доступность.
На машине до поселка можно доехать всего за 15 минут от Москвы по скоростному Новорижскому шоссе. Добраться до коттеджного поселка можно по Новорижскому шоссе. Время в пути до Москвы составит не более 20 минут, до Москва-Сити – 30-40 минут.
Если вам нужно уединение и спокойствие, отсутствие «лишних», то деревня Лешково именно то, что вы ищите.

Какой поселок на Новой Риге
подойдет именно вам?

Ответьте на несколько вопросов и получите экспертное мнение, какой поселок подходит под ваши требования (отметьте галочками приоритетные параметры)

Каталог в мессенджере