Для корректной работы сайта выключите VPN

Новый дом в КП Истра Вита

Описание

Вашему вниманию представляется великолепный дом Под Ключ в коттеджном поселке Истра Вита!

Дом абсолютно новый.
Внутри выполнена хорошая качественная отделка, на первом этаже установлена вся необходимая мебель и бытовая техника.
Во всех помещениях установлено панорамное остекление, что увеличивает ощущение простора и делает их очень светлыми.

Дом построен по немецкой технологии строительства "фахверк", при это пирог стен усилен гидромембраной и металлическим гофролистом, за счет чего теплопроводность стен становится очень низкая, а издержки на поддержание необходимой температуры минимальными.
Дом построен на монолитной плите. Внутри установлена приточно-вытяжная вентиляция, что обеспечивает приток свежего воздуха во все помещения.
Все полы в доме теплые.
В котельной установлено газовое оборудование Viessmann, а также резервный электрический котел.

На участке выполнена планировка, сделан дренаж, засеян газон, высажены плодовые деревья, а посередине участка растет могучая липа, защищающая жителей дома своей тенью, в жаркий солнечный день.
Количество спален: 4 Жилая площадь: 195 Тип дома: деревянный Готовность: Готов полностью Категория земли: ДНП

Коммуникации

Газ: Да Канализация: центральная Водопровод: центральный Электричество, кВт: 15

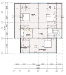
Планировка

Первый этаж: прихожая, кабинет (гостевая спальня), спальня, санузел с душевой, гостиная-кухня-столовая с выходом на террасу, котельная.
Второй этаж: холл, три спальни, ванная комнат.

О посёлке

Коттеджный поселок Истра Вита - это небольшой клубный поселок, расположенный в 40км от МКАД по скоростному Новорижскому шоссе.
Поселок имеет благоустроенную и охраняемую территорию, на въезде организован контрольно-пропускной пункт, круглосуточно ведется патрулирование территории службой охраны. Все коммуникации в поселке Истра Вита центральные. (электричество, водопровод, канализация, газ).
Так же на территории поселка есть прогулочная зона с детской площадкой.
В непосредственной близости от поселка Истра Вита есть вся необходимая для комфортной жизни инфраструктура: магазины, рестораны, аптека, школа, спортивный клуб и многое другое.
Всего в 15 минутах от поселка расположен замечательный город Истра, с развитой инфраструктурой а также одной из самых главных Христианских достопримечательностей - Новоиерусалимским монастырем.

Если Вы хотите купить дом с отделкой на Новорижском шоссе, в окружении природы, но с близостью к хорошей инфраструктуре, то поселок Истра Вита, это именно то, что Вам нужно!

Лот: 119189809

40 км от МКАД 195 м² 7.5 сот.
дом 4 спальни под ключ в ипотеку
32 800 000 рублей

Ваш персональный менеджер

Васильева Анжелика
Васильева Анжелика
Специалист по работе с загородной недвижимостью

Описание

Вашему вниманию представляется великолепный дом Под Ключ в коттеджном поселке Истра Вита!

Дом абсолютно новый.
Внутри выполнена хорошая качественная отделка, на первом этаже установлена вся необходимая мебель и бытовая техника.
Во всех помещениях установлено панорамное остекление, что увеличивает ощущение простора и делает их очень светлыми.

Дом построен по немецкой технологии строительства "фахверк", при это пирог стен усилен гидромембраной и металлическим гофролистом, за счет чего теплопроводность стен становится очень низкая, а издержки на поддержание необходимой температуры минимальными.
Дом построен на монолитной плите. Внутри установлена приточно-вытяжная вентиляция, что обеспечивает приток свежего воздуха во все помещения.
Все полы в доме теплые.
В котельной установлено газовое оборудование Viessmann, а также резервный электрический котел.

На участке выполнена планировка, сделан дренаж, засеян газон, высажены плодовые деревья, а посередине участка растет могучая липа, защищающая жителей дома своей тенью, в жаркий солнечный день.
Количество спален: 4 Жилая площадь: 195 Тип дома: деревянный Готовность: Готов полностью Категория земли: ДНП

Коммуникации

Газ: Да Канализация: центральная Водопровод: центральный Электричество, кВт: 15

Планировка

Первый этаж: прихожая, кабинет (гостевая спальня), спальня, санузел с душевой, гостиная-кухня-столовая с выходом на террасу, котельная.
Второй этаж: холл, три спальни, ванная комнат.

О посёлке

Коттеджный поселок Истра Вита - это небольшой клубный поселок, расположенный в 40км от МКАД по скоростному Новорижскому шоссе.
Поселок имеет благоустроенную и охраняемую территорию, на въезде организован контрольно-пропускной пункт, круглосуточно ведется патрулирование территории службой охраны. Все коммуникации в поселке Истра Вита центральные. (электричество, водопровод, канализация, газ).
Так же на территории поселка есть прогулочная зона с детской площадкой.
В непосредственной близости от поселка Истра Вита есть вся необходимая для комфортной жизни инфраструктура: магазины, рестораны, аптека, школа, спортивный клуб и многое другое.
Всего в 15 минутах от поселка расположен замечательный город Истра, с развитой инфраструктурой а также одной из самых главных Христианских достопримечательностей - Новоиерусалимским монастырем.

Если Вы хотите купить дом с отделкой на Новорижском шоссе, в окружении природы, но с близостью к хорошей инфраструктуре, то поселок Истра Вита, это именно то, что Вам нужно!

Какой поселок на Новой Риге
подойдет именно вам?

Ответьте на несколько вопросов и получите экспертное мнение, какой поселок подходит под ваши требования (отметьте галочками приоритетные параметры)

Каталог в мессенджере