Для корректной работы сайта выключите VPN

Дом под отделку в КП Истра Лэнд-2

Описание

Вашему вниманию представлен дом 282 кв м, расположенный в клубном коттеджном поселке Истра Лэнд-2 в 45 км от МКАД по Новорижскому шоссе.
Проект дома выполнен в современном стиле удовлетворит вкусы самых взыскательных покупателей, так как является плодом многолетней деятельности строительной компании-подрядчика. Дом возведен на монолитной фундаментной плите, стены выполнены из крупноформатного керамического блока Paraterm, окна - двухкамерный стеклопакет, металлическая входная дверь. В проекте дома заложена эксплуатируемая крыша, которая позволит наслаждаться прекрасными видами. Имеется подробная проектная документация с дизайнерскими решениями.
Помимо конструктива дома, продумано до мелочей и планировочное решение: просторные три спальни, большая гостиная, терраса, кабинет, три гардеробные, три санузла и сауна, также по проекту на участке можно разместить бассейн.

Участок 12 соток правильной и ровной формы. Дома в поселке расположены самым лучшим образом: так, что без возведения больших заборов можно чувствовать атмосферу уединения с природой.
К дому подведены все необходимые центральные коммуникации: газ, электричество, вода, канализация. Есть место для площадки для парковки перед домом и возможно строительство навеса или теплого гаража.
Количество спален: 4 Санузел: совмещенный Тип дома: кирпичный Готовность: Строится Высота потолков: 3.5 Категория земли: Земли нас. пунктов, ИЖС

Коммуникации

Газ: Да Канализация: центральная Водопровод: центральный Электричество, кВт: 15

Планировка

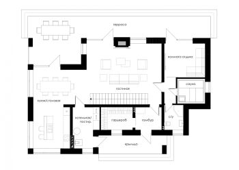
Первый этаж: холл, кабинет, санузел, гардеробная, кухня-гостиная, котельная, терраса;
Второй этаж: холл, мастер-спальня, две спальни, санузел, балкон.

О посёлке

Коттеджный̆ Посёлок премиум класса «Истра-Лэнд 2» расположен в 45 км от МКАД по Новорижскому, Пятницкому или Ленинградскому шоссе, на полуострове Истринского водохранилища, окруженном лесом. Этот посёлок является частью КП «Истра-Лэнд», вблизи поселка Лопотово, с развитой̆ инфраструктурой̆.

Поселок расположен на закрытой территории со своим КПП, круглосуточной охраной и видеонаблюдением. Внутри поселка созданы все условия для комфортного проживания: асфальтные подъездные дороги, широкие улицы с тротуарами и освещением, зелёные общественные зоны. Все коммуникации центральные: водоснабжение, электричество, канализация, газ.

Богатство различной инфраструктуры впечатляет: в 10-ти минутах езды - круглосуточный продуктовый магазин; в пешей доступности расположены 3 пляжных зоны: 1 -открытая и 2 – закрытые; несколько яхт-клубов с эллингами; в пешей доступности расположен парк для пеших и вело-прогулок; в 5 минутах езды - общественные спортивные площадки, включая хоккейную коробку; в 20 минутах - физкультурно- оздоровительный̆ комплекс с круглогодичными занятиями для детей̆ и взрослых: теннисный̆ корт, волейбольная площадка и клуб водных видов спорта с арендой̆ оборудования и инструкторами; неподалёку также находится клуб «Романтик» с еженедельными спортивными мероприятиями.

Удобное расположение поселка позволяет в течение 50-ти минут на автомобиле добраться до Москвы по одному из трех шоссе: Новорижскому, Пятницкому или Ленинградскому.

Лот: 76165445

45 км от МКАД 282 м² 12 сот.
дом 4 спальни без отделки в ипотеку
45 000 000 рублей

Ваш персональный менеджер

Видецких Олег
Видецких Олег
Специалист по работе с загородной недвижимостью

Описание

Вашему вниманию представлен дом 282 кв м, расположенный в клубном коттеджном поселке Истра Лэнд-2 в 45 км от МКАД по Новорижскому шоссе.
Проект дома выполнен в современном стиле удовлетворит вкусы самых взыскательных покупателей, так как является плодом многолетней деятельности строительной компании-подрядчика. Дом возведен на монолитной фундаментной плите, стены выполнены из крупноформатного керамического блока Paraterm, окна - двухкамерный стеклопакет, металлическая входная дверь. В проекте дома заложена эксплуатируемая крыша, которая позволит наслаждаться прекрасными видами. Имеется подробная проектная документация с дизайнерскими решениями.
Помимо конструктива дома, продумано до мелочей и планировочное решение: просторные три спальни, большая гостиная, терраса, кабинет, три гардеробные, три санузла и сауна, также по проекту на участке можно разместить бассейн.

Участок 12 соток правильной и ровной формы. Дома в поселке расположены самым лучшим образом: так, что без возведения больших заборов можно чувствовать атмосферу уединения с природой.
К дому подведены все необходимые центральные коммуникации: газ, электричество, вода, канализация. Есть место для площадки для парковки перед домом и возможно строительство навеса или теплого гаража.
Количество спален: 4 Санузел: совмещенный Тип дома: кирпичный Готовность: Строится Высота потолков: 3.5 Категория земли: Земли нас. пунктов, ИЖС

Коммуникации

Газ: Да Канализация: центральная Водопровод: центральный Электричество, кВт: 15

Планировка

Первый этаж: холл, кабинет, санузел, гардеробная, кухня-гостиная, котельная, терраса;
Второй этаж: холл, мастер-спальня, две спальни, санузел, балкон.

О посёлке

Коттеджный̆ Посёлок премиум класса «Истра-Лэнд 2» расположен в 45 км от МКАД по Новорижскому, Пятницкому или Ленинградскому шоссе, на полуострове Истринского водохранилища, окруженном лесом. Этот посёлок является частью КП «Истра-Лэнд», вблизи поселка Лопотово, с развитой̆ инфраструктурой̆.

Поселок расположен на закрытой территории со своим КПП, круглосуточной охраной и видеонаблюдением. Внутри поселка созданы все условия для комфортного проживания: асфальтные подъездные дороги, широкие улицы с тротуарами и освещением, зелёные общественные зоны. Все коммуникации центральные: водоснабжение, электричество, канализация, газ.

Богатство различной инфраструктуры впечатляет: в 10-ти минутах езды - круглосуточный продуктовый магазин; в пешей доступности расположены 3 пляжных зоны: 1 -открытая и 2 – закрытые; несколько яхт-клубов с эллингами; в пешей доступности расположен парк для пеших и вело-прогулок; в 5 минутах езды - общественные спортивные площадки, включая хоккейную коробку; в 20 минутах - физкультурно- оздоровительный̆ комплекс с круглогодичными занятиями для детей̆ и взрослых: теннисный̆ корт, волейбольная площадка и клуб водных видов спорта с арендой̆ оборудования и инструкторами; неподалёку также находится клуб «Романтик» с еженедельными спортивными мероприятиями.

Удобное расположение поселка позволяет в течение 50-ти минут на автомобиле добраться до Москвы по одному из трех шоссе: Новорижскому, Пятницкому или Ленинградскому.

Какой поселок на Новой Риге
подойдет именно вам?

Ответьте на несколько вопросов и получите экспертное мнение, какой поселок подходит под ваши требования (отметьте галочками приоритетные параметры)

Каталог в мессенджере