Для корректной работы сайта выключите VPN

Готовый дом в КП Ильинские сады

Описание

Предлагаем Вашему вниманию новый дом "под ключ" площадью 150 кв. м в охраняемом коттеджном поселке "Ильинские сады", расположенном в 6 км от МКАД по Новорижскому шоссе.
Дом построен по архитектурному и дизайнерскому проекту с использованием современных материалов и технологий. Панорамное остекление, установлены мультифункциональные стеклопакеты Solar с защитой от ультрафиолетовых лучей. Есть фото и видео всех этапов строительных работ.

На первом этаже просторная светлая гостиная с кухней-столовой и выходом на террасу. Дом оборудован современными системами приточно-вытяжной вентиляции и системой кондиционирования. Установлены теплые водяные полы. Выполнена подготовка к системе "Умный дом" и система защиты от протечек.
В доме эксплуатируемая кровля, есть выход со второго этажа. Можно сделать террасу или полноценный жилой этаж площадью 65 кв. м.
В доме все центральные коммуникации: электроснабжение, газоснабжение, холодное водоснабжение, канализация, в том числе и ливневая.

Участок правильной формы, площадью 6 соток, хорошо освещен. Участок благоустроен, высажены деревья, выполнен ландшафтный дизайн, дренаж по периметру дома.
На территории крытая парковка на два автомобиля, установлены автоматические ворота.
Количество спален: 3 Тип балкона: терраса Тип дома: Газобетон Готовность: Готов полностью Категория земли: Земли сельхоз. назначения, дачное строительство

Коммуникации

Газ: Да Канализация: центральная Водопровод: центральный Электричество, кВт: 15

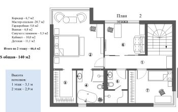
Планировка

Первый этаж: гостиная, кухня-столовая, прихожая, гардеробная, санузел, бойлерная;
Второй этаж: мастер-спальня со своей гардеробной и санузлом, спальня, санузел с хамамом, детская комната.

О посёлке

Коттеджный поселок "Ильинские сады" расположен в 6 км от МКАД по Новорижскому шоссе. Поселок окружен реликтовым смешанным лесом. Красота здешних мест с лёгкостью восстанавливают утраченные горожанами связи с природой. Именно здесь нашел своё воплощение новый современный взгляд на активный отдых и комфортное проживание на природе.
Доступ в поселок осуществляется собственниками через организованный въезд, улицы в поселке освещены.

В ближайшей доступности вся инфраструктура поселка Архангельское: школы, детские сады, торговые центры, больницы, кафе, фитнес-клубы и салоны красоты. Рядом расположены: гипермаркеты Леруа Мерлен и Глобус, магазин "Магнит ", музей-заповедник Архангельское (800 м), санаторий Архангельское, музей техники Вадима Задорожного, средняя школа имени А. Н. Косыгина.

Удобное расположение поселка позволяет быстро доехать до центра Москвы как на личном автомобиле, так и на общественном транспорте. В пешей доступности от поселка "Юсуповские сады" строится новая станция метро «Архангельское».
Ближайшая автобусная остановка находится в 900 м от поселка, здесь проходят 9 автобусных маршрутов и 8 маршрутных такси в разные части города Москвы. На автомобиле время в пути до МКАД составит менее 10 минут, а до Москва-Сити менее получаса.

Лот: 132605971

6 км от МКАД 150 м² 5.9 сот.
дом 3 спальни под ключ в ипотеку
74 000 000 рублей

Ваш персональный менеджер

Васильева Анжелика
Васильева Анжелика
Специалист по работе с загородной недвижимостью

Описание

Предлагаем Вашему вниманию новый дом "под ключ" площадью 150 кв. м в охраняемом коттеджном поселке "Ильинские сады", расположенном в 6 км от МКАД по Новорижскому шоссе.
Дом построен по архитектурному и дизайнерскому проекту с использованием современных материалов и технологий. Панорамное остекление, установлены мультифункциональные стеклопакеты Solar с защитой от ультрафиолетовых лучей. Есть фото и видео всех этапов строительных работ.

На первом этаже просторная светлая гостиная с кухней-столовой и выходом на террасу. Дом оборудован современными системами приточно-вытяжной вентиляции и системой кондиционирования. Установлены теплые водяные полы. Выполнена подготовка к системе "Умный дом" и система защиты от протечек.
В доме эксплуатируемая кровля, есть выход со второго этажа. Можно сделать террасу или полноценный жилой этаж площадью 65 кв. м.
В доме все центральные коммуникации: электроснабжение, газоснабжение, холодное водоснабжение, канализация, в том числе и ливневая.

Участок правильной формы, площадью 6 соток, хорошо освещен. Участок благоустроен, высажены деревья, выполнен ландшафтный дизайн, дренаж по периметру дома.
На территории крытая парковка на два автомобиля, установлены автоматические ворота.
Количество спален: 3 Тип балкона: терраса Тип дома: Газобетон Готовность: Готов полностью Категория земли: Земли сельхоз. назначения, дачное строительство

Коммуникации

Газ: Да Канализация: центральная Водопровод: центральный Электричество, кВт: 15

Планировка

Первый этаж: гостиная, кухня-столовая, прихожая, гардеробная, санузел, бойлерная;
Второй этаж: мастер-спальня со своей гардеробной и санузлом, спальня, санузел с хамамом, детская комната.

О посёлке

Коттеджный поселок "Ильинские сады" расположен в 6 км от МКАД по Новорижскому шоссе. Поселок окружен реликтовым смешанным лесом. Красота здешних мест с лёгкостью восстанавливают утраченные горожанами связи с природой. Именно здесь нашел своё воплощение новый современный взгляд на активный отдых и комфортное проживание на природе.
Доступ в поселок осуществляется собственниками через организованный въезд, улицы в поселке освещены.

В ближайшей доступности вся инфраструктура поселка Архангельское: школы, детские сады, торговые центры, больницы, кафе, фитнес-клубы и салоны красоты. Рядом расположены: гипермаркеты Леруа Мерлен и Глобус, магазин "Магнит ", музей-заповедник Архангельское (800 м), санаторий Архангельское, музей техники Вадима Задорожного, средняя школа имени А. Н. Косыгина.

Удобное расположение поселка позволяет быстро доехать до центра Москвы как на личном автомобиле, так и на общественном транспорте. В пешей доступности от поселка "Юсуповские сады" строится новая станция метро «Архангельское».
Ближайшая автобусная остановка находится в 900 м от поселка, здесь проходят 9 автобусных маршрутов и 8 маршрутных такси в разные части города Москвы. На автомобиле время в пути до МКАД составит менее 10 минут, а до Москва-Сити менее получаса.

Какой поселок на Новой Риге
подойдет именно вам?

Ответьте на несколько вопросов и получите экспертное мнение, какой поселок подходит под ваши требования (отметьте галочками приоритетные параметры)

Каталог в мессенджере