Для корректной работы сайта выключите VPN

Дом без отделки в кп Аносино парк

Описание

Вашему вниманию представляется дом в коттеджном поселке Аносино парк, расположенном в 25 км от МКАД по Новорижскому шоссе.
Высокий видовой участок в застроенной части поселка, в 2-х минутах ходьбы от Парковой зоны.
Дом из керамического блока Porotherm. Высокие потолки, 4 спальни с гардеробными и санузлами.
Конструктив дома: фундамент монолитная плита, стены из керамического блока Porotherm 38, фасад: клинкерная плитка и штукатурка, межэтажное и чердачное перекрытия сборные железобетонные, мягкая кровля.
Количество спален: 4 Тип дома: Блоки Готовность: Под отделку Категория земли: Земли нас. пунктов, ИЖС

Коммуникации

Газ: Да Канализация: центральная Водопровод: центральный Электричество, кВт: 15

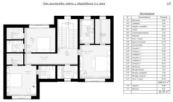
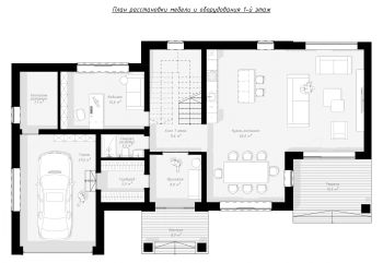
Планировка

Первый этаж: кухня столовая с панорамным остеклением, жилая комната (спальня/кабинет), гостевой санузел, гараж и проходная гардеробная при входе, терраса выходит на солнечную сторону участка;
Второй этаж: три просторные спальни, каждая из которых имеет свою гардеробную и санузел, отдельная комната в качестве домашней постирочной.

О посёлке

Коттеджный поселок «Аносино Парк» — это отличное место для загородного жилья для себя и своей семьи, всего в 25 км от МКАД по Новорижскому шоссе. Коттеджный посёлок «Аносино Парк» комфорт класса расположен в элитном экологически-чистом Истринском районе.
Общая площадь коттеджного поселка составляет 25 Га, разделенный на 316 участков от 5 до 9 соток.
Зона благоустройства с разнообразными и современными спортивными и детскими площадками для приятного совместного отдыха с семьей и соседями. Все внутренние дороги в коттеджном поселке Аносино Парк асфальтированы. Это повышенный уровень комфорта загородной жизни. На въезде предусмотрена гостевая парковка, чтобы ваши гости могли оставить свой автомобиль и провести время с вами. Организована круглосуточная профессиональная охрана с осмотром территории и видеонаблюдением. Территория посёлка огорожена, въезд через КПП с пропускной системой. Здесь вы и ваши близкие будут чувствовать себя в безопасности.

Исчерпывающая городская инфраструктура – от отделений банков до уютных кофеен —расположена в ближайшем доступе. В непосредственной близости посёлка располагаются муниципальные и частные детские сады, школы и гимназии с хорошей репутацией, торгово-развлекательные, спортивные, медицинские и велнес центры, аутлеты, кафе и рестораны, эко-рынки, банки и автосервис.
Коттеджный посёлок Аносино Парк выгодно расположен всего в 25 км от МКАД по скоростному Новорижскому шоссе и 2 км от шоссе, что позволяет быстро добираться до столицы. Ограничение скорости на Новорижском шоссе составляет 110 км/ч, что делает эту трассу скоростной и комфортной. До коттеджного посёлка можно добраться на автобусе № 1189 от ст. м. Строгино, а также на электричке до ж/д станции Нахабино, далее на автобусе № 22.

Лот: 101572382

25 км от МКАД 296 м² 5.4 сот.
дом 4 спальни без отделки в ипотеку
36 500 000 рублей

Ваш персональный менеджер

Новоселов Владимир
Новоселов Владимир
Специалист по работе с загородной недвижимостью

Описание

Вашему вниманию представляется дом в коттеджном поселке Аносино парк, расположенном в 25 км от МКАД по Новорижскому шоссе.
Высокий видовой участок в застроенной части поселка, в 2-х минутах ходьбы от Парковой зоны.
Дом из керамического блока Porotherm. Высокие потолки, 4 спальни с гардеробными и санузлами.
Конструктив дома: фундамент монолитная плита, стены из керамического блока Porotherm 38, фасад: клинкерная плитка и штукатурка, межэтажное и чердачное перекрытия сборные железобетонные, мягкая кровля.
Количество спален: 4 Тип дома: Блоки Готовность: Под отделку Категория земли: Земли нас. пунктов, ИЖС

Коммуникации

Газ: Да Канализация: центральная Водопровод: центральный Электричество, кВт: 15

Планировка

Первый этаж: кухня столовая с панорамным остеклением, жилая комната (спальня/кабинет), гостевой санузел, гараж и проходная гардеробная при входе, терраса выходит на солнечную сторону участка;
Второй этаж: три просторные спальни, каждая из которых имеет свою гардеробную и санузел, отдельная комната в качестве домашней постирочной.

О посёлке

Коттеджный поселок «Аносино Парк» — это отличное место для загородного жилья для себя и своей семьи, всего в 25 км от МКАД по Новорижскому шоссе. Коттеджный посёлок «Аносино Парк» комфорт класса расположен в элитном экологически-чистом Истринском районе.
Общая площадь коттеджного поселка составляет 25 Га, разделенный на 316 участков от 5 до 9 соток.
Зона благоустройства с разнообразными и современными спортивными и детскими площадками для приятного совместного отдыха с семьей и соседями. Все внутренние дороги в коттеджном поселке Аносино Парк асфальтированы. Это повышенный уровень комфорта загородной жизни. На въезде предусмотрена гостевая парковка, чтобы ваши гости могли оставить свой автомобиль и провести время с вами. Организована круглосуточная профессиональная охрана с осмотром территории и видеонаблюдением. Территория посёлка огорожена, въезд через КПП с пропускной системой. Здесь вы и ваши близкие будут чувствовать себя в безопасности.

Исчерпывающая городская инфраструктура – от отделений банков до уютных кофеен —расположена в ближайшем доступе. В непосредственной близости посёлка располагаются муниципальные и частные детские сады, школы и гимназии с хорошей репутацией, торгово-развлекательные, спортивные, медицинские и велнес центры, аутлеты, кафе и рестораны, эко-рынки, банки и автосервис.
Коттеджный посёлок Аносино Парк выгодно расположен всего в 25 км от МКАД по скоростному Новорижскому шоссе и 2 км от шоссе, что позволяет быстро добираться до столицы. Ограничение скорости на Новорижском шоссе составляет 110 км/ч, что делает эту трассу скоростной и комфортной. До коттеджного посёлка можно добраться на автобусе № 1189 от ст. м. Строгино, а также на электричке до ж/д станции Нахабино, далее на автобусе № 22.

Какой поселок на Новой Риге
подойдет именно вам?

Ответьте на несколько вопросов и получите экспертное мнение, какой поселок подходит под ваши требования (отметьте галочками приоритетные параметры)

Каталог в мессенджере